Referenznummer:
VK-15070_WE05
Bezug:
vermietet
Lage:
Berlin-Wedding
Wohnfläche:
ca. 79m²
Zimmeranzahl:
3
Mieteinnahmen netto:
330,00 €
Energieausweis:
Liegt vor
Energieausweistyp:
Verbrauchsausweis
Energieverbrauch:
134 kWh/(m²*a)
Heizungsart:
Zentralheizung
Wesentlicher Energieträger:
Öl
Baujahr:
1904
Provision:
7,14% des Kaufpreises inkl. 19% MwSt., zahlbar vom Käufer
Kaufpreis:
139.000 €

WUNDERSCHÖNER ALTBAU - GROßZÜGIGER SCHNITT - ATTRAKTIVE KAPITALANLAGE

Lagebeschreibung:


Das Mehrfamilienhaus liegt in einer beliebten Gegend im Bezirk Berlin-Wedding.
Die Lage bietet nicht nur eine gute Verkehrsanbindung sondern auch viele Freizeit und Erholungsmöglichkeiten.
In der nahen Umgebung befinden sich viele nationale und internationale Restaurants und Cafés und sämtliche Einkaufsmöglichkeiten für den täglichen Bedarf.
Das beliebte Shoppingcenter "Gesundbrunnencenter" ist in wenigen Minuten zu erreichen.

Objektbeschreibung:


Die Wohnung befindet sich in einem wundervollen Berliner Altbau aus dem Jahr 1904.
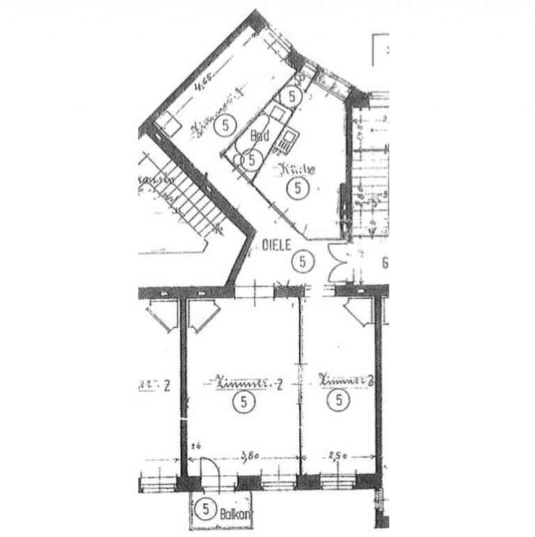
Sie liegt im 1. Obergeschoss und verfügt auf ca. 79 m² Wohnfläche über drei Zimmer, eine Küche, ein Badezimmer sowie einen Balkon.

Die Wohnung ist seit 2008 zuverlässig vermietet und eignet sich hervorragend als Kapitalanlage.

Das Gebäude wurde in 2014 in Eigentumswohnungen aufgeteilt, so dass eine 10-jährige Kündigungssperrfrist für die aktuellen Mieter besteht.