Referenznummer:
VK-24038
Bezug:
leer
Lage:
Berlin-Reinickendorf
Grundstücksfläche:
820m²
Wohnfläche:
ca. 108m²
Zimmeranzahl:
4
Energieausweis:
Liegt vor
Energieausweistyp:
Verbrauchsausweis
Energieverbrauch:
200 kWh/(m²*a)
Energieeffizienzklasse:
G
Heizungsart:
Zentralheizung
Wesentlicher Energieträger:
Öl
Baujahr:
1939
Provision:
3,57% des Kaufpreises inkl. 19% MwSt., zahlbar vom Käufer.
Kaufpreis:
695.000 €

WALD- & WASSERLAGE - IDYLLISCHE TERRASSE & SCHÖNER GARTEN - GROSSE KÜCHE & KAMINOFEN

Lagebeschreibung:


Das Grundstück befindet sich im Bezirk Reinickendorf, im Ortsteil Tegel, direkt am Waldrand und in Wasser-Lage.

Als grüner Bezirk im Nordwesten der Stadt mit attraktiven Wasserflächen und idyllischen Badestellen wie der Tegeler See, Parkanlagen und dem Tegeler Forst mit Wanderwegen ist eine optimale Voraussetzung für die aktive Erholung gegeben.

Einkaufsmöglichkeiten für den täglichen Bedarf sind in wenigen Minuten zu erreichen sowie Parkanlagen, kulturelle Einrichtungen, Apotheken und weitere Dienstleistungen. Weitere Einkaufsmöglichkeiten sind in den Hallen am Borsigturm zu finden. Diese beherbergen auch ein großes Kino sowie Freizeit- und Sportflächen.

Eine gute Anbindung an den öffentlichen Nahverkehr ist ebenfalls gegeben. Tegel liegt an der S-Bahnstrecke der Linie S25 Henningsdorf-Teltow Stadt, welche alle 20 Minuten ins Zentrum Berlins sowie nach Henningsdorf fährt. Weiterhin verläuft die U6 mit drei Stationen durch Tegel. Der Bahnhof Alt-Tegel bietet Umsteigemöglichkeiten zur S-Bahn.

Mit dem PKW ist in ca. 15 Minuten die Berliner City gut zu erreichen.

Objektbeschreibung:


Das Einfamilienhaus wurde im Jahr 1939 auf einem ca. 820 m² großen Grundstück errichtet, ist unterkellert und verfügt über eine Wohnfläche von ca. 107,76 m² sowie eine Nutzfläche von ca. 89,82 m²

Im Erdgeschoss befinden sich ein Eingangsbereich mit genügend Platz für eine Garderobe; ein Duschbad; ein schöner Essbereich mit Kaminofen und einer offen Küche, ausgestattet mit einer großzügigen Einbauküche und viel Platz für Stauraum und ausreichend Arbeitsflächen. Die überdachte Terrasse ist vom Wohnzimmer begehbar und bietet einen weiten Blick in den großen, gepflegten Garten.

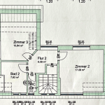
In der oberen Ebene sind zwei Schlafzimmer und ein Badezimmer mit einer Eckbadewanne und ein separates WC gelegen.

Der Spitzboden wurde 1994 ausgebaut und gedämmt und sorgt für zusätzlichen Stauraum.

Im Kellergeschoss befinden sich ein weiterer Raum, ein WC, ein als Werkstatt genutzter Raum und ein praktischer Hauswirtschaftsraum.

Die unteren Wohnräume sind mit einem pflegeleichten Vinyl-Boden versehen, und in der oberen Ebene wurde Laminatboden verlegt. Darunter befindet sich ein Holzdielenboden. Die Wände sind verspachtelt. Weiterhin verfügt das Haus über doppelt verglaste Kunststofffenster. Die Deckenhöhe beträgt ca. 2,60 m und vermittelt ein angenehmes Raumgefühl.

Der große Garten bietet viel Platz und ein Gartenhäuschen ist zudem vorhanden.

Eine Doppelgarage und ein Carport für insgesamt drei PKW runden das Angebot ab.

Das Haus kann nach Absprache bezugsfrei übergeben werden.