Immobilien im Herzen der Stadt sind äußerst nachgefragt!
Der nahe gelegene KuDamm, der Kiez rund um den Ludwigkirchplatz, der beliebte Güntzelkiez, der wunderschöne Viktoria-Luise-Platz und das KaDeWe gehören zur Nachbarschaft.
In nur wenigen Gehminuten befinden sich die U-Bahn-Stationen Spichernstraße (U9) und Hohenzollernplatz (U1/U3) sowie verschiedene Buslinien, wie die Linien 204, 249, N3 und N9.
Mit dem PKW besteht eine bequeme Anbindung an die Stadtautobahn A100, die zum Flughafen Schönefeld, dem Berliner Ring und ins Berliner Umland führt.
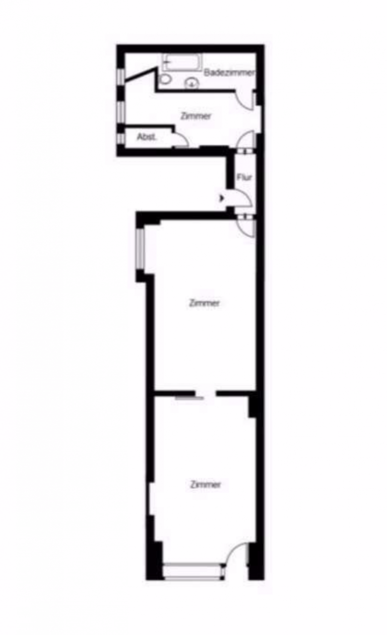
Die Gewerbeeinheit, bestehend aus 3 Zimmern, Küche, Bad, Flur, befindet sich im Erdgeschoss eines 1904 erbauten Wohn- und Geschäftshauses.
Die hohen Decken sind mit Deckenmalerei und Stuck verziert, womit sich der viel gesuchte Altbaucharme erhalten hat. Die hölzernen Kassettentüren und das Eichenparkett lassen die Räume authentisch und individuell wirken.
Die Räumlichkeiten sind komplett gewerblich nutzbar. Der Grundrisses lässt eine flexible Gestaltung zu und bietet daher verschiedene Möglichkeiten der gewerblichen Nutzung.
Die Nutzung als Ferienwohnung ist ebenfalls denkbar, was eine sehr gute Rendite ermöglichen könnte.
Die Immobilie verfügt über zwei Hochebenen, wodurch eine weitere Nutzfläche mit ca. 20 m² geschaffen wurde, z.B. als Lagerfläche oder auch als Schlafbereich.
Die neu installierte Einbauküche kann auf Wunsch übernommen werden.
Das gepflegte Badezimmer verfügt über hochwertige sanitäre Objekte der Firma Duravit, die funktional angeordnet wurden.
Ein nützlicher Hauswirtschaftsraum befindet sich im hinteren Zimmer.
Die Wohnung kann über einen separaten Eingang betreten werden.
Das aktuelle Hausgeld beträgt 312,86 €.
Ein Keller rundet das Angebot ab.