Referenznummer:
VM-18036
Bezug:
leer
Lage:
Berlin-Kreuzberg
Wohnfläche:
ca. 113m²
Zimmeranzahl:
3
Nettokaltmiete:
1.900,00 €
Miete:
2.140,00 €
Energieausweis:
Liegt vor
Energieausweistyp:
Bedarfsausweis
Energieverbrauch:
225.9 kWh/(m²*a)
Energieeffizienzklasse:
G
Heizungsart:
Etagenheizung
Wesentlicher Energieträger:
Erdgas leicht
Baujahr:
1900

UMFASSEND MODERNISIERT - 2 TERRASSEN - BEGEHRTE KIEZ LAGE!

Lagebeschreibung:


Die Wohnung befindet sich in unmittelbarer Nähe zum Viktoriapark im beliebten Bezirk Kreuzberg.

Der ehemalige Westberliner Bezirk und heutige Stadtteil Kreuzberg ist seit 1990 wieder im Zentrum der Hauptstadt Berlin. Er liegt südlich des Stadtteils Mitte und gehört seit 2001 zum Bezirk Friedrichshain-Kreuzberg.

Für den Kreuzberger steht fest: Sein Stadtteil ist der coolste Berlins und wahrscheinlich des Universums. Kreuzberg steht für bunte Kultur, ist Experimentierfeld für alternative Lebensmodelle.

Gute öffentliche Verkehrsverbindungen hat man mit der U1 und U7, U-Bhf. Möckernbrücke.

Objektbeschreibung:


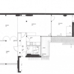
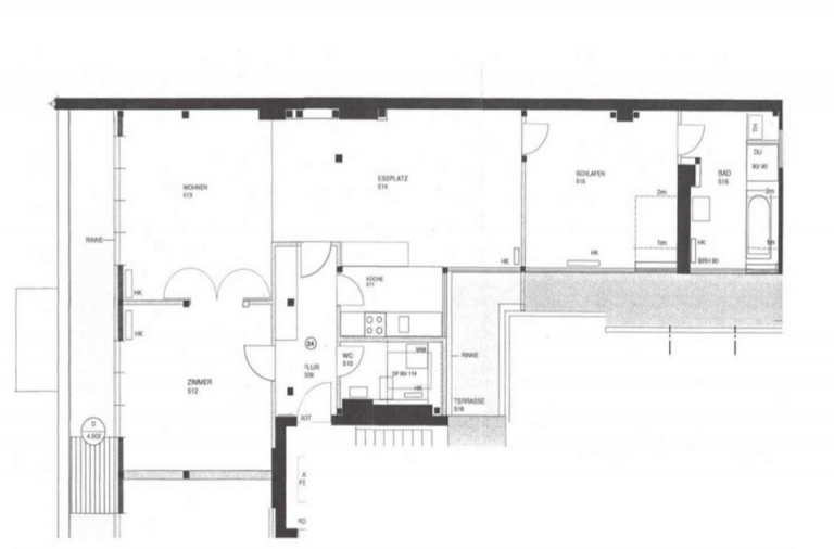
Diese wunderschöne, umfassend modernisierte Dachgeschoss-Wohnung befindet sich im Vorderhaus eines typischen Berliner Altbaus und ist bequem mit dem Aufzug erreichbar.

Vom Flur aus, welcher genügend Platz für eine Garderobe bietet, gelangt man in zwei der drei Zimmer, ebenso befindet sich rechts das Gäste-WC und der Zugang zur Küche.

Linkerhand betritt man einen großen Raum, welcher als Arbeitszimmer oder Gästezimmer genutzt werden kann. Von dort aus gelangt man auf die westlich ausgerichtete Terrasse.

Durch einen Durchgang erreicht man das ca. 46 m² große Wohn-/Esszimmer, welches ebenfalls Zugang zur großen Terrasse hat. Besonderen Charme verleiht eine Wand des Zimmers, bei der die Holzbalken und das Mauerwerk freigestellt wurden.

Von der Küche hat man Zugang zum zweiten Balkon, welcher nach Osten ausgerichtet ist. Die Wohnung ist mit einer neuen Einbauküche ausgestattet.

Das großzügig geschnittene Schlafzimmer schließt sich direkt an den Wohnbereich an. Vom Schlafraum gelangt man in das moderne und helle Badezimmer, welches mit einer Badewanne und einer begehbaren Dusche ausgestattet ist.

Die gesamte Wohnung ist sehr hell, komplett modernisiert, mit Parkettboden ausgestattet, und man hat einen sehr schönen Blick über die Dächer von Kreuzberg sowie seitlich zum Viktoriapark.

Abgerundet wird das Angebot durch einen Keller.