Mitte ist ein Berliner Ortsteil im gleichnamigen Bezirk und umfasst einen Teil der historischen Stadtteile von Berlin. Die Lage gehört zu den begehrtesten und zentralsten Stellen der Stadt.
Historie und Moderne treffen hier aufeinander und bilden eine sehr außergewöhnliche Einheit. Es gibt eine Mischung aus historischen Altbauwohnungen und modernen Neubauten. Die Architektur ist abwechslungsreich und reicht von klassischen Berliner Stadthäusern bis hin zu stilvollen Loftgebäuden.
Die Infrastruktur in der Umgebung ist ausgezeichnet. Geschäfte des täglichen Bedarfs befinden sich in direkter Nachbarschaft zum Wohnhaus, der Alexanderplatz ist fußläufig zu erreichen, ebenso eine Vielzahl individueller Cafés, Bars und hervorragender Restaurants.
Mitte begeistert durch ein vielseitiges Angebot. Hier ist für Jedermann etwas dabei. So kommen Kulturbegeisterte im Naturkundemuseum oder in den Ausstellungen des Hamburger Bahnhofs auf ihre Kosten. Der Mauerpark lädt zum Flohmarkt ein oder bietet sich als entspannte Location für ein Picknick mit Freunden in den Sommermonaten an, gute Laune und Musik inklusive.
Die Anbindung an den ÖPNV ist optimal. So ermöglichen diverse, nahegelegene Bus- & Tramstationen sowie U-Bahnhöfe eine flexible und schnelle Verknüpfung. Die U-Bahnlinie der U8 (Jannowitzbrücke) hält quasi vor der Haustür.
Eine ideale Lage für Personen, die das pulsierende Stadtleben genießen und gleichzeitig in einer komfortablen, harmonischen Umgebung wohnen möchten.
Die drei markanten Gebäude, die als Brüder bekannt sind, wurden von Helmut Stingl und Joachim Seifert entworfen und zeichnen sich durch ihr gewagtes Design in Rot, Gelb und Blau aus.
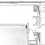
Das 17-geschossige Wohnhochhaus mit Security-Service wurde 1971 erbaut, die Wohnung befindet sich im 10. Obergeschoss, ist bequem mit dem Aufzug erreichbar und verfügt über eine Wohnfläche von ca. 30 m².
Diese verteilt sich auf einen Eingangsbereich mit ausreichend Platz für eine Garderobe; ein Badezimmer, ausgestattet mit einer Badewanne und eine offen gehaltene Küche, die in den Wohn-/Schlafzimmerbereich integriert ist.
Die zweifach verglasten Kunststofffenster erstrecken sich über die gesamte Breite des Wohn-/Schlafzimmerbereiches, welcher eine westliche Ausrichtung hat. Die Wände sind tapeziert und im Wohnbereich ist pflegeleichtes, helles Laminat verlegt. Die Deckenhöhe beträgt ca. 2,60 m.
Abgerundet wird das Angebot durch einen PKW-Stellplatz, welcher für 15.000 EUR erworben werden kann, sowie ein Fahrradraum auf der gleichen Etage, ein praktischer Müllschlucker und ein Kellerabteil.
Die Wohnung ist möbliert, auf Wunsch und nach Absprache kann das Inventar übernommen werden.
Einziehen und sich wohlfühlen!