Referenznummer:
VK-24693
Bezug:
vermietet
Lage:
Berlin-Neu-Hohenschönhausen
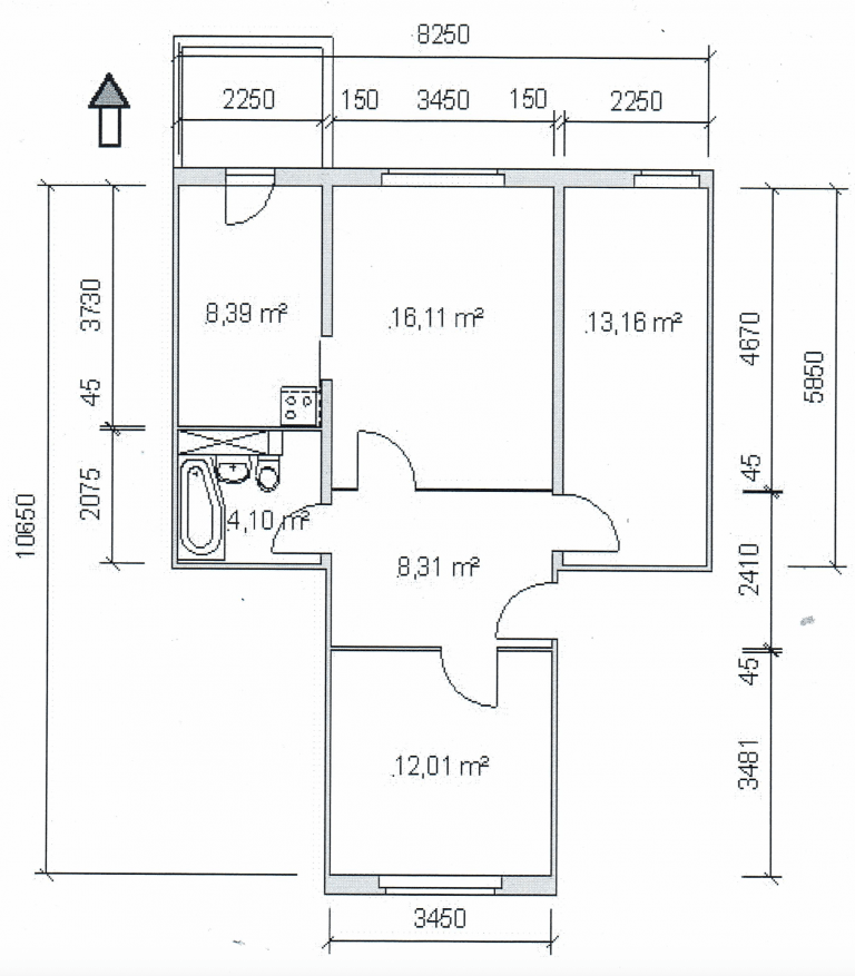
Wohnfläche:
ca. 65m²
Zimmeranzahl:
3
Mieteinnahmen netto:
484,00 €
Energieausweis:
Liegt vor
Energieausweistyp:
Verbrauchsausweis
Energieverbrauch:
75.4 kWh/(m²*a)
Energieeffizienzklasse:
C
Heizungsart:
Zentralheizung
Wesentlicher Energieträger:
Fernwärme
Baujahr:
1987
Provision:
3,57% des Kaufpreises inkl. 19% MwSt., zahlbar vom Käufer.
Kaufpreis:
179.000 €

SONNIGER WEST-BALKON - SCHÖNE, GROSSE GRÜNANLAGE - ZUR ZEIT VERMIETET

Lagebeschreibung:


Neu-Hohenschönhausen ist ein Ortsteil im Bezirk Lichtenberg in Berlin. Der Ortsteil entstand im Jahr 2002 durch die Zusammenlegung von Gebieten der Ortsteile Malchow, Wartenberg und Falkenberg.

Die Wohnanlage befindet sich im Ortsteil Wartenberg.

In unmittelbarer Nähe, nur etwa fünf Autominuten entfernt, befindet sich das moderne Linden-Center, ein attraktives Einkaufszentrum mit rund 90 Geschäften. Es bietet vielfältige Möglichkeiten zum Einkaufen und Verweilen. Darüber hinaus befinden sich in der Umgebung zahlreiche Einkaufsmöglichkeiten, Restaurants, ein Kino sowie verschiedene Gesundheitseinrichtungen.

Wer Ruhe sucht oder sich sportlich betätigen möchte, findet dies im Landschaftspark Wartenberger Feldmark. Dabei handelt es sich um ein rund 210 Hektar großes Naherholungsgebiet, das aus ehemaligen Rieselfeldern hervorgegangen ist und 2023 offiziell als Landschaftsschutzgebiet ausgewiesen wurde. Die abwechslungsreiche Landschaft umfasst Wiesen, Felder, Obstwiesen und kleine Waldstücke. Besonders hervorzuheben sind das Japanische Tor und die Ahornallee. Auch ein Garten aus Kirschbäumen im Süden des Parks ist vorhanden.

Die Anbindung an den öffentlichen Personennahverkehr ist hervorragend: Mehrere Buslinien, darunter die Linien X54, 154, 197, 256, 893 und N56, sowie die Straßenbahnlinien M4 und M17 gewährleisten eine gute Erreichbarkeit. Der S-Bahnhof Hohenschönhausen mit der Linie S75 sowie die Regionalbahnlinien RB 12, RB 24 und RB 32 bieten darüber hinaus schnelle Verbindungen in das Berliner Umland. Dank der verkehrsgünstigen Lage sind alle Stadtteile Berlins auch mit dem PKW gut erreichbar.

Objektbeschreibung:


Die Wohnanlage wurde 1987 erbaut, die Wohnung befindet sich im fünften Obergeschoss und ist über das Treppenhaus zu erreichen.

Eine Wohnfläche von ca. 65 m² verteilt sich auf einen Flur mit Einbauschränken; zwei Schlafzimmer; ein Badezimmer, ausgestattet mit einer Badewanne; ein Wohnzimmer; eine Küche, ausgestattet mit einer Einbauküche, und mit Zugang zur westlich ausgerichteten Loggia, die einen Blick in den begrünten Innenhof bietet. Eine Abstellkammer sorgt für zusätzlichen Stauraum.

Die Wohnräume sind mit Laminatboden ausgestattet, die Kunststofffenster sind zweifach verglast, und die Wände sind tapeziert. Eine Raumhöhe von ca. 2,60 m verleiht der Wohnung ein gemütliches Raumgefühl.

Ein Keller ist der Wohnung ebenfalls zugeteilt und rundet das Angebot ab.

Die Wohnung ist seit 2018 zuverlässig vermietet. Ein neuer Eigentümer kann das Mietverhältnis mit einer Frist von 6 Monaten innerhalb der gesetzlichen Bestimmungen wegen Eigenbedarfs kündigen.