Referenznummer:
VK-25466
Bezug:
leer
Lage:
Berlin-Staaken
Grundstücksfläche:
520m²
Wohnfläche:
ca. 127m²
Zimmeranzahl:
5
Energieausweis:
Liegt vor
Energieausweistyp:
Verbrauchsausweis
Energieverbrauch:
148.3 kWh/(m²*a)
Energieeffizienzklasse:
E
Heizungsart:
Zentralheizung
Wesentlicher Energieträger:
Gas
Baujahr:
1996
Provision:
3,57% des Kaufpreises inkl. 19% MwSt., zahlbar vom Käufer.
Kaufpreis:
578.000 €

CA. 212,80 m² WOHN-/NUTZFLÄCHE - VOLL UNTERKELLERT & GUT GESCHNITTEN - RUHIG, ZENTRAL & GUTE INFRASTRUKTUR

Lagebeschreibung:


Staaken ist ein Ortsteil im Berliner Bezirk Spandau und überzeugt durch seine naturnahe Umgebung sowie die gleichzeitige Nähe zur historischen Altstadt Spandau. Über die Heerstraße besteht eine ausgezeichnete Verkehrsanbindung in die Berliner Innenstadt.

Die Infrastruktur in der Umgebung ist sehr gut: Schulen, Kindergärten, Sportvereine, zahlreiche Einkaufsmöglichkeiten und eine vielfältige Gastronomie sind schnell erreichbar.

Für Freizeitaktivitäten bieten die nahegelegenen Spektewiesen ideale Möglichkeiten für Spaziergänge oder sportliche Betätigung im Freien. Die Scharfe Lanke mit dem Spandauer Yacht-Club sowie die Uferbereiche der Havel laden zum Entspannen oder zu Wassersportaktivitäten ein. An warmen Tagen sorgt zudem das familienfreundliche Sommerbad Staaken-West für Badespaß und Abkühlung, besonders beliebt bei Kindern und Jugendlichen. Das Hallenbad Falkensee bietet zusätzliches Badevergnügen und ist in 4 Minuten mit dem PKW erreichbar.

Nur wenige Autominuten westlich von Staaken liegt die Gemeinde Dallgow-Döberitz mit dem beliebten Designer Outlet Berlin, das eine große Auswahl an Markengeschäften und gastronomischen Angeboten bietet. Auch die Döberitzer Heide, ein ehemaliges Truppenübungsgelände, ist ein weitläufiges Natur- und Erholungsgebiet, das sich hervorragend für Wanderungen, Fahrradtouren und Naturbeobachtungen eignet.

Der öffentliche Nahverkehr ist durch die Buslinie 237 gesichert, die eine direkte Verbindung zum Rathaus Spandau bietet. Von dort aus besteht Anschluss an den U- und S-Bahn-Verkehr und somit eine schnelle Erreichbarkeit aller zentralen Berliner Stadtbereiche. Der Bahnhof Albrechtshof ist zudem in wenigen Minuten erreicht.

Für Autofahrer ist die Berliner Innenstadt je nach Verkehrslage in etwa 15 bis 30 Minuten erreichbar.

Objektbeschreibung:


Das voll unterkellerte Gebäude wurde im Jahr 1996 als Kampa-Fertighaus auf einem ca. 520 m² großen Grundstück errichtet und verfügt über eine Wohnfläche von ca. 126,95 m² und einer Nutzfläche von 88,33 m².

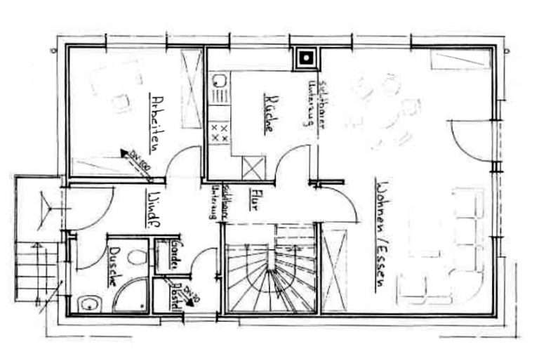
Neben dem einladenden Eingangsbereich verfügt das Erdgeschoss über einen praktischen Abstellraum, ein komfortables sowie tagesbelichtetes Duschbad, ein Schlafzimmer, ein großes Wohn-/Esszimmer und eine Küche mit einer modernen Einbauküche, Tresen und einer Speisekammer. Die großzügige Terrasse ist vom Wohn-/Esszimmer begehbar und bietet einen Blick in den gepflegten Garten. Die Terrasse und die Gartenfläche bieten viel Platz für entspannte oder für gesellige Zeiten.

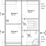
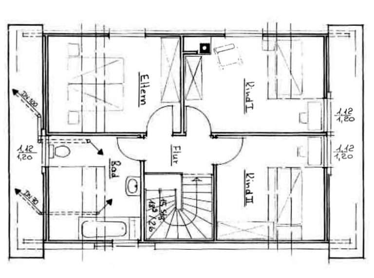
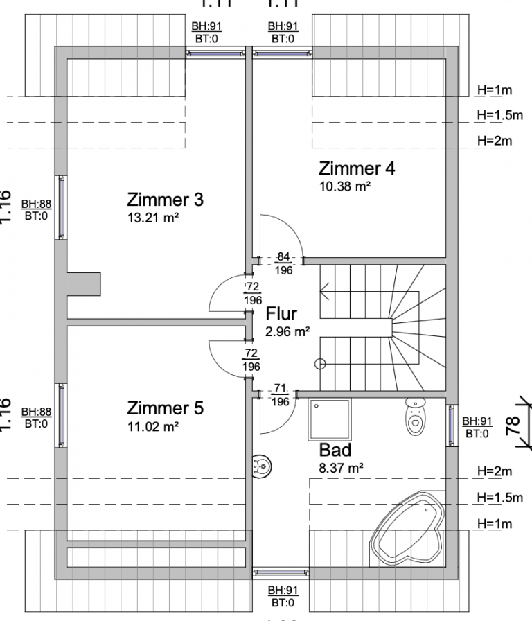
Im Obergeschoss befinden sich drei Schlafzimmer sowie ein Badezimmer mit Eckbadewanne und separater Dusche. Ein Spitzboden bietet zusätzlichen Stauraum.

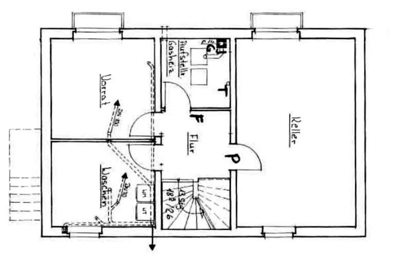
Das Souterrain verfügt über zwei weitere Räume und ein großes Wannenbad mit separater Dusche und Waschmaschinenanschluss.

Das Haus ist mit doppelt verglasten Kunststofffenstern ausgestattet, die Wohnräume sind mit Laminatboden und Auslegware versehen, und die Wände sind glatt verspachtelt.

Zudem sind noch zwei weitere PKW-Stellplätze auf dem Grundstück vorhanden.

Das Haus kann zum April 2026 bezugsfrei übergeben werden.

Neugierig? Wir freuen uns über Ihre Kontaktaufnahme!