Referenznummer:
VK-23039_WE05
Bezug:
vermietet
Lage:
Berlin-Steglitz
Wohnfläche:
ca. 67m²
Zimmeranzahl:
2
Mieteinnahmen netto:
356,00 €
Energieausweis:
Liegt vor
Energieausweistyp:
Verbrauchsausweis
Energieverbrauch:
95.77 kWh/(m²*a)
Energieeffizienzklasse:
C
Heizungsart:
Fernwärme
Wesentlicher Energieträger:
Fernwärme
Baujahr:
1907
Provision:
3,57% des Kaufpreises inkl. 19% MwSt., zahlbar vom Käufer
Kaufpreis:
329.000 €

RUHIGE LAGE - MIT STUCK, PARKETT IM FISCHGRÄTMUSTER & BALKON - ZUR ZEIT VERMIETET

Lagebeschreibung:


Die Immobilie befindet sich in einer ruhigen Seitenstraße im beliebten Berliner Stadtteil Steglitz, einer der gefragtesten Wohnlagen Berlins nahe des Stadtparks Steglitz. Die Lage besticht durch eine grüne Umgebung sowie die Nähe zum Zentrum, um alle Vorteile des Großstadtlebens genießen zu können.

Hervorragende Einkaufsmöglichkeiten und eine gastronomische Vielfalt bietet die Schlossstraße, die als kleine Schwester vom Kurfürstendamm bekannt und beliebt ist. Dort befinden sich verschiedene Geschäfte und Einkaufszentren, die zum Flanieren einladen. In der näheren Umgebung steht eine Auswahl von gemütlichen Cafés und beliebten Restaurants zur Verfügung.

Der großflächige Stadtpark Steglitz lädt zu gemütlichen Spaziergängen ein. Der rund 17 ha. große Park wurde zwischen 1906 und 1914 angelegt, später entstand ein Rosengarten mit einem Seerosenbecken. Neben einem Musikpavillon gibt es mehrere Liegewiesen und Spielplätze, eine Minigolfanlage, einen Naturlehrpfad und einen Rodelhang. Außerdem verfügt der Park über vier künstlich angelegte Teiche.

Eine gute Anbindung an den öffentlichen Personenverkehr ist durch verschiedene Buslinien gegeben. Mit dem PKW sind alle Ziele in und rund um Berlin ebenfalls sehr gut erreichbar.

Objektbeschreibung:


Das Wohnhaus- und Geschäftshaus wurde 1907 erbaut und verfügt über insgesamt 11 Wohneinheiten sowie eine Gewerbeeinheit.

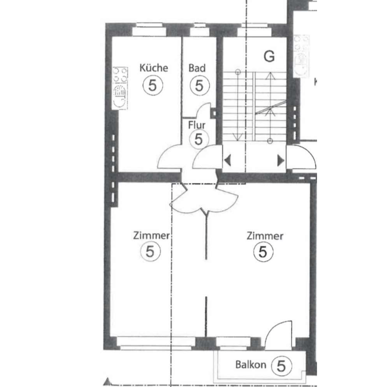
Die 2-Zimmerwohnung befindet sich im 2. Obergeschoss. Auf ca. 67 m² Wohnfläche verteilen sich ein Flur, eine Küche, ein tagesbelichtetes Badezimmer, ausgestattet mit einer Badewanne und einem Handtuchwärmer, ein Schlafzimmer, sowie ein Wohnzimmer.

Ein kleiner, zur Straßenseite südlich ausgerichteter Balkon ist ebenfalls vorhanden und vom Wohnzimmer begehbar.

Die Böden der Wohnräume sind mit Parkett im Fischgrätmuster ausgestattet, die Küche und das Badezimmer sind gefliest und die Doppelkastenfenster sind aus Holz.

Abgerundet wird das Angebot durch ein Kellerabteil.

Die Wohnung ist seit dem 01.09.2017 zuverlässig vermietet. Das Gebäude wurde 2020 in Eigentumseinheiten aufgeteilt. Nach Verkauf der Wohnung besteht eine 10- jährige Kündigungssperrfrist für den aktuellen Mieter. Ein neuer Eigentümer kann nach Ablauf der Sperrfrist das Mietverhältnis mit einer Frist von 9 Monaten innerhalb der gesetzlichen Bestimmungen wegen Eigenbedarfs kündigen.