Referenznummer:
VK-19171_WE02
Bezug:
vermietet
Lage:
Berlin-Friedenau
Wohnfläche:
ca. 80.81m²
Zimmeranzahl:
3
Mieteinnahmen netto:
650,00 €
Energieausweis:
Dieses Gebäude unterliegt nicht den GEG-Anforderungen
Heizungsart:
Zentralheizung
Baujahr:
1910
Provision:
3,57 % des Kaufpreises inkl 19 % MwSt., zahlbar vom Käufer
Kaufpreis:
369.000 €

RUHIGE LAGE IM HERZEN VON SCHÖNEBERG - ZENTRAL - ZUR ZEIT VERMIETET

Lagebeschreibung:


Die Immobilie befindet sich im beliebten Berliner Stadtteil Friedenau in einer ruhigen Seitenstraße.

Der Stadtteil Friedenau wurde ursprünglich in der Kaiserzeit als Landhauskolonie angelegt. Heute überzeugt er durch sanierte Altbauten mit repräsentativen Fassaden und mit ihren kleine, grünen Vorgärten. Das Zentrum von Friedenau bildet der Friedrich-Wilhelm-Platz.

Hervorragende Einkaufsmöglichkeiten und eine gastronomische Vielfalt bietet die nur sechs Gehminuten entfernte Schloßstraße, die als kleine Schwester vom Kurfürstendamm bekannt und beliebt ist.

Die unmittelbare Umgebung bietet in allen Bereichen eine komplette Versorgungsfunktion. Schulen, Kitas, Dienstleistungs- sowie Gesundheitseinrichtungen sind in einer Vielzahl vorhanden.

Für Erholungs- und Freizeitangebote dienen der Volkspark Wilmersdorf und der Rudolph-Wilde Park, welche in wenigen Minuten sowohl mit dem Fahrrad oder auch zu Fuß zu erreichen sind.

Auch eine gute Anbindung an den öffentlichen Personalverkehr ist durch den U-Bhf. Friedrich-Wilhelm Platz gegeben.

Wer mit dem Auto fährt, kann mithilfe der A103 viele Orte Berlins schnell erreichen.

Objektbeschreibung:


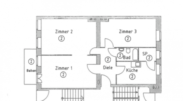
Das Mehrfamilienhaus wurde 1910 erbaut, steht unter Denkmalschutz und ist in ein Vorderhaus mit einem Seitenflügel aufgeteilt. Die Wohnung befindet sich im Hochparterre des Vorderhauses des 4-geschossigen Gebäudes.

Neben dem Wohnungseingang befindet sich die Küche und daneben das tagesbelichtete Badezimmer, das mit einer Badewanne ausgestattet ist.

Vom Eingangsbereich aus auf der linken Seite befindet sich das Wohnzimmer, das einen direkten Zugang zum östlich ausgerichteten Balkon hat. Hier ist Platz für Tisch und Stühle, um an warmen Sommertagen den Abend ausklingen lassen. Durch eine Verbindungstür zum geräumigen Nachbarzimmer, das als Esszimmer genutzt wird, profitieren beide Räume. Eine zusätzliche separate Tür führt vom Esszimmer auf den Flur, durch diese ist das Schlafzimmer erreichbar. Das Schlafzimmerfenster ist zum begrünten Hof ausgerichtet und verschafft den Bewohnern einen ruhigen Schlaf.

Alle Räume sind bequem vom Flur aus zu erreichen. Die Fußböden in den Wohnräumen und in der Küche sind mit Laminat ausgelegt. Der Flur hat einen Dielenfußboden. Das Badezimmer ist gefliest.

Das Gebäude wurde 2018 in Eigentumswohnungen aufgeteilt. Die Wohnung ist seit 01.07.2013 zuverlässig vermietet. Nach Verkauf der Wohnung besteht eine 10-jährige Kündigungsschutzfrist für die aktuellen Mieter.