Referenznummer:
VK-19069_WE13
Bezug:
vermietet
Lage:
Berlin-Steglitz
Wohnfläche:
ca. 94m²
Zimmeranzahl:
3
Mieteinnahmen netto:
901,00 €
Energieausweis:
Dieses Gebäude unterliegt nicht den GEG-Anforderungen
Heizungsart:
Zentralheizung
Baujahr:
1926
Provision:
3,57 % des Kaufpreises inkl 19 % MwSt., zahlbar vom Käufer
Kaufpreis:
449.000 €

RUHIGE LAGE IM HERZEN VON STEGLITZ - SONNIGES DACHGESCHOSS - ZUR ZEIT VERMIETET

Lagebeschreibung:


Die Immobilie befindet sich in einer ruhigen Seitenstraße mitten in Steglitz, damit im günstig gelegenen Südwesten von Berlin, am Übergang zwischen den dicht bebauten Innenstadtbezirken und den Villen- sowie Eigenheimvororten. Steglitz gilt als gehobener und sicherer Berliner Stadtteil.

Einkaufsmöglichkeiten für den täglichen Bedarf befinden sich direkt um die Ecke und die Schlossstraße mit ihrem breiten Kaufangebot ist nur 10 Gehminuten entfernt.

Ebenfalls in der Nähe sind der Lauenburger Platz, der Sochos Sportplatz und "Das Insulaner", welcher ein großes Freizeitangebot bietet, wie z.B. Minigolf, Planetarium und ein Sommerbad.

In der Nähe liegt der große Stadtpark Steglitz mit vielfältigen Freizeitmöglichkeiten, sowie der Botanische Garten.

Der Anschluss an den öffentlichen Nahverkehr mit den U-Bahnlinien U-Bahn Linien U5 und U9 sowie die S-Bahnlinie S1 und an die Autobahnen A103 und A100 ist in Steglitz jeweils in wenigen Minuten erreichbar.

Objektbeschreibung:


Dieses hübsche Mehrfamilienhaus, in einer ruhigen Strasse gelegen, wurde 1925-1926 von den Architekten Mebes & Emmerich entworfen und gebaut und steht unter Denkmalschutz.

Das Wohnhaus verfügt über 14 Wohneinheiten, auf 5 Etagen verteilt.

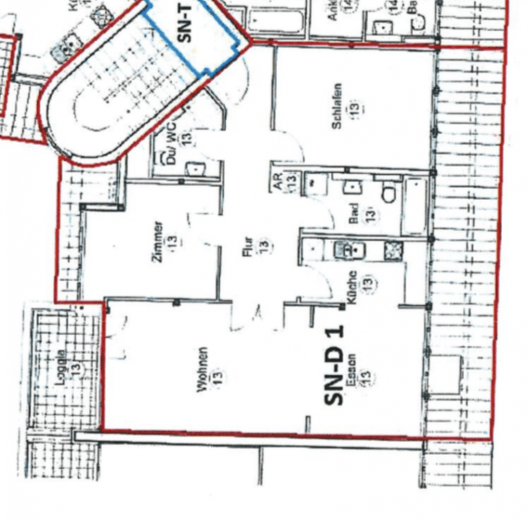
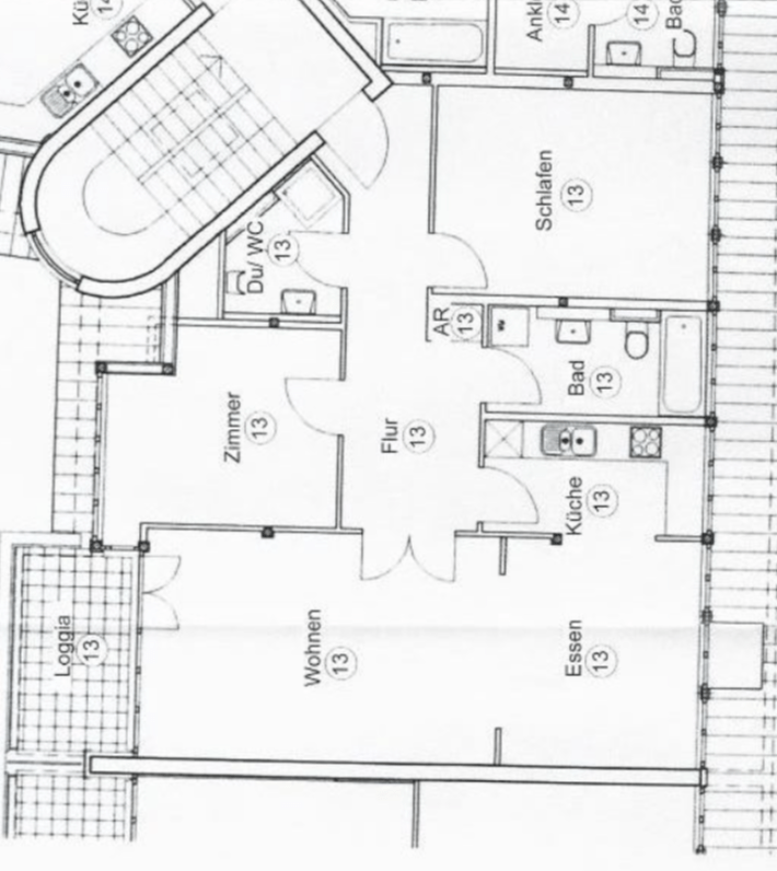
Die drei-Zimmer-Wohnung befindet sich im Dachgeschoss des 1926 erbauten Altbaus.

Die Wohnung überzeugt nicht nur durch Ihre großzügig geschnittenen Räume, sondern auch durch Ihren komfortablen Schnitt.

Links vom Eingangsbereich aus befindet sich das Schlafzimmer. Danebenliegend ist das lichtdurchflutete Wannenbad.

Geradezu vom Eingangsbereich aus befindet sich das Wohnzimmer mit Zugang zur Loggia und einem separaten Essbereich. In die Küche gelangt man sowohl vom Flur als auch vom Essbereich.

Neben dem Eingang rechts befindet sich das Gäste WC, welches mit einer Dusche ausgestattet ist. Direkt neben dem Gäste WC befindet sich der dritte Raum, der sowohl als Kinderzimmer als auch zum Arbeiten genutzt werden kann.

Der Wohnung ist ein Sondernutzungsrecht D1 zugeteilt.

Die Wohnung ist seit dem 01.07.2013 zuverlässig vermietet. Nach dem Verkauf der Wohnung besteht eine 10-jährige Kündigungsschutzfrist für die aktuellen Mieter.