Referenznummer:
VK-19069_WE07
Bezug:
vermietet
Lage:
Berlin-Steglitz
Wohnfläche:
ca. 85.95m²
Zimmeranzahl:
3
Mieteinnahmen netto:
580,00 €
Energieausweis:
Dieses Gebäude unterliegt nicht den GEG-Anforderungen
Heizungsart:
Zentralheizung
Baujahr:
1926
Provision:
3,57 % des Kaufpreises inkl 19 % MwSt., zahlbar vom Käufer
Kaufpreis:
389.000 €

RUHIGE LAGE IM HERZEN VON STEGLITZ - NAHE DER SCHLOSSSTRASSE - ZUR ZEIT VERMIETET

Lagebeschreibung:


Die Immobilie befindet sich in einer ruhigen Seitenstraße mitten in Steglitz, damit im günstig gelegenen Südwesten von Berlin, am Übergang zwischen den dicht bebauten Innenstadtbezirken und den Villen- sowie Eigenheimvororten. Steglitz gilt als gehobener und sicherer Berliner Stadtteil.

Einkaufsmöglichkeiten für den täglichen Bedarf befinden sich direkt um die Ecke und die Schlossstraße mit ihrem breiten Kaufangebot ist nur 10 Gehminuten entfernt.

Ebenfalls in der Nähe sind der Lauenburger Platz, der Sochos Sportplatz und "Das Insulaner", welcher ein großes Freizeitangebot bietet, wie z.B. Minigolf, Planetarium und ein Sommerbad.

In der Nähe liegt der große Stadtpark Steglitz mit vielfältigen Freizeitmöglichkeiten, sowie der Botanische Garten.

Der Anschluss an den öffentlichen Nahverkehr mit den U-Bahnlinien U-Bahn Linien U5 und U9 sowie die S-Bahnlinie S1 und an die Autobahnen A103 und A100 ist in Steglitz jeweils in wenigen Minuten erreichbar.

Objektbeschreibung:


Das Mehrfamilienhaus ist in einer ruhigen Straße gelegen, es wurde 1925 -1926 von den Architekten Mebes & Emmerich entworfen und gebaut und steht unter Denkmalschutz.

Das Wohnhaus verfügt über 14 Wohneinheiten, aufgeteilt auf 5 Etagen.

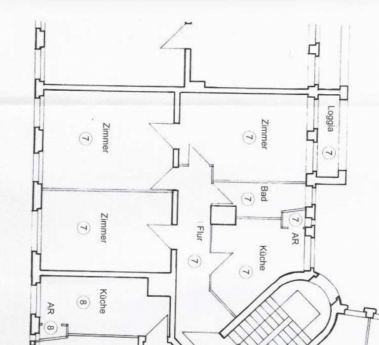
Die Wohnung befindet sich in der zweiten Etage und verfügt über eine Wohnfläche von ca. 85,95 m².

Sie verfügt über insgesamt drei helle Räume, eine Küche mit Abstellkammer, eine geräumige Diele sowie ein gefliestes Wannenbad mit Fenster und eine Loggia.

Die Wohnung ist optimal aufgeteilt. Vom Flur aus gelangt man in alle Räume. Rechts befindet sich die Küche und das Wannenbad. Geradeaus gelangt man in das Wohnzimmer mit Zugang zur Loggia.

Auf der linken Seite befinden sich zwei weitere Zimmer.

Das gesamte Wohnensemble hat einen wunderschönen, parkähnlich angelegten Innenhofbereich mit Spielplatz.

Ein Keller rundet das Angebot ab.

Die Wohnung ist seit dem 15.08.1969 zuverlässig vermietet. Nach dem Verkauf der Wohnung besteht eine 10-jährige Kündigungsschutzfrist für die aktuellen Mieter.