Referenznummer:
VK-25555
Bezug:
leer
Lage:
Berlin-Französisch Buchholz
Grundstücksfläche:
508m²
Wohnfläche:
ca. 137m²
Zimmeranzahl:
4
Energieausweis:
Liegt vor
Energieausweistyp:
Bedarfsausweis
Energieverbrauch:
23.1 kWh/(m²*a)
Energieeffizienzklasse:
A+
Heizungsart:
Wärmepumpe
Wesentlicher Energieträger:
Strom
Baujahr:
2013
Provision:
3,57% des Kaufpreises inkl. 19% MwSt., zahlbar vom Käufer.
Kaufpreis:
799.000 €

POOL GEFÄLLIG? - NIEDRIGENERGIEHAUS MIT KAMIN & STILVOLLER AUSSTATTUNG - EINZIEHEN & SICH WOHLFÜHLEN

Lagebeschreibung:


Französisch Buchholz ist ein Berliner Ortsteil im Bezirk Pankow, der überwiegend durch Einfamilienhäuser und lediglich 20% Mehrfamilienhäuser geprägt ist. Durch die offene Bauweise und ausgedehnte Grünflächen gestaltet sich Französisch Buchholz als besonders angenehme Wohngegend für Familien und Naturliebhaber.

Geschäfte des täglichen Bedarfs und ein gastronomisches Angebot finden sich an der Triftstr. , der Hauptstr. sowie an der Schönerlinder Str. und gewährleisten eine sehr gute Versorgung.

Als familienfreundliche Gegend steht ein Angebot an Kindergärten, Kitas, Grund- und Oberschulen zur Verfügung.

Zahlreiche Freizeit- und Erholungsmöglichkeiten bieten sich aufgrund der Nähe zum Botanischen Volkspark Pankow, der Panke oder den Karower Teichen an. Golfbegeisterte profitieren zudem von der kurzen Entfernung zum nahegelegenen Golf Resort Berlin Pankow.

Der Bus der Linie 259 sowie die Tram der Linie 50 sind fußläufig in ca. 15 Minuten zu erreichen. Mit dem PKW ist eine gute Verbindung sowohl nach Norden ins Berliner Umland oder in die Berliner City gegeben.

Objektbeschreibung:


Das massiv errichtete Einfamilienhaus wurde 2013 auf einem ca. 508 m² großen Grundstück erbaut.

Die Wohnfläche von ca. 136,97 m² verteilt sich im Erdgeschoss auf einen einladenden Eingangsbereich mit Platz für die Garderobe; ein halbes Zimmer, das sich ideal als Arbeitszimmer oder Gästezimmer eignet; ein tagesbelichtetes Duschbad mit ebenerdiger Dusche sowie einen großen Wohn-/Essbereich mit Kamin und einer offenen Küche, ausgestattet mit einer modernen Einbauküche nebst Tresen.

Die große Terrasse erstreckt sich über die gesamte Breite des Wohn-/Essbereichs und bietet einen schönen Blick auf den ca. 8m x 2,75m großen und ca.1,50m tiefen Salzwasserpool, der beheizt werden kann und somit ganzjährig nutzbar ist.

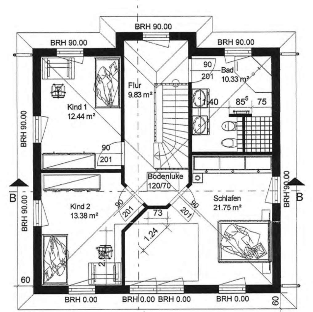
Im Obergeschoss befinden sich ein Flur; drei Schlafzimmer sowie ein tagesbelichtetes Badezimmer, das über eine bodentiefe Regenschauer-Dusche und eine Badewanne verfügt. Ein Spitzboden sorgt für weiteren Stauraum.

Die Flächen im Erdgeschoss sind mit großformatigen modernen Fliesen, während die Räume im Obergeschoss mit einem pflegeleichten Laminatboden ausgestattet sind. Eine Fußbodenheizung schafft in allen Bereichen ein angenehmes Raumgefühl. Die Wände sind glatt verspachtelt, und die Kunststofffenster doppelt verglast. Die Deckenhöhe beträgt ca. 2,60 m und vermittelt ein sehr angenehmes Raumgefühl.

Das energieeffiziente Gebäude verfügt über eine elektrische Luft-Wärmepumpe sowie über eine Photovoltaik Anlage.

Der Gartenbereich wird mittels einer automatischen Sprinkleranlage bewässert.

Auf dem Grundstück befindet sich zudem ein Carport mit angrenzender Abstellkammer.

Einziehen und sich wohlfühlen!