Referenznummer:
VK-25477
Bezug:
leer
Lage:
Berlin-Zehlendorf
Grundstücksfläche:
1578m²
Wohnfläche:
ca. 196.03m²
Zimmeranzahl:
6
Energieausweis:
liegt zur Besichtigung vor
Wesentlicher Energieträger:
Öl
Baujahr:
1929
Provision:
3,57% des Kaufpreises inkl. 19% MwSt., zahlbar vom Käufer.
Kaufpreis:
2.799.000 €

CA. 379 m² GRUNDFLÄCHE - PARKÄHNLICHES GRUNDSTÜCK MIT BEBAUUNGSPOTENTIAL - MIT GARAGE, KAMIN & SAUNA

Lagebeschreibung:


Der Berliner Bezirk Zehlendorf umfasst die Ortsteile Zehlendorf, Dahlem, Nikolassee und Wannsee. Er ist geprägt von weitläufigen Wald und Wasserflächen sowie von gehobenen und bevorzugten Wohnlagen.

Das im Jahr 1929 errichtete Einfamilienhaus befindet sich in einer ruhigen Seitenstraße, zugleich aber in zentraler Lage, so dass alle Einkaufsmöglichkeiten für den täglichen Bedarf in kurzer Entfernung erreichbar sind. Fußläufig ist eines der beliebtesten Restaurants in dieser Gegend erreichbar.

Eine größere Auswahl an Geschäften, Cafés und Restaurants befindet sich im Zentrum von Zehlendorf rund um den Teltower Damm, am Mexikoplatz oder in der nahegelegenen Schlossstraße im benachbarten Steglitz, der zweitgrößten Einkaufsmeile Berlins.

Jede Woche findet am Mexikoplatz ein kleiner, liebevoll zusammengestellter Markt statt. Rund 20 Stände bieten in fast dörflicher Atmosphäre frische Blumen, Kräuter, Gemüse und unter anderem einen Bio-Metzger. Der Markt legt Wert auf Lebensqualität, lädt zum Verweilen ein und gilt als echtes Schmuckstück. Zusätzlich gibt es in Zehlendorf-Mitte, direkt an der S-Bahn Station, einen weiteren Wochenmarkt mit größerer Auswahl.

Die Krumme Lanke und der Schlachtensee sind fußläufig in etwa 20 Minuten erreichbar und bieten ideale Möglichkeiten zum Spazierengehen, Joggen oder Baden. Zehlendorf gilt als der grünste Bezirk Berlins und bietet daher vielfältige Freizeitangebote in der Natur.

Die Anbindung an den öffentlichen Nahverkehr ist durch nahegelegene Buslinien sowie die S Bahn Linie S1 am Bahnhof Mexikoplatz gewährleistet. Mit dem Auto lassen sich über den Autobahnanschluss sowohl zentrale Ziele in Berlin als auch Potsdam zügig erreichen, die Potsdamer Innenstadt ist in etwa zwanzig Minuten erreichbar.

Objektbeschreibung:


Die freistehende Stadtvilla wurde 1929 auf einem ca. 1.578 m² großen, parkähnlichen Grundstück erbaut und 1992 saniert. Die Villa verfügt über ca. 196 m² Wohnfläche und ca. 212 m² Nutzfläche. Das Gebäude ist voll unterkellert, weiterhin steht ein ausgebautes Dachgeschoss und eine Garage zur Verfügung.

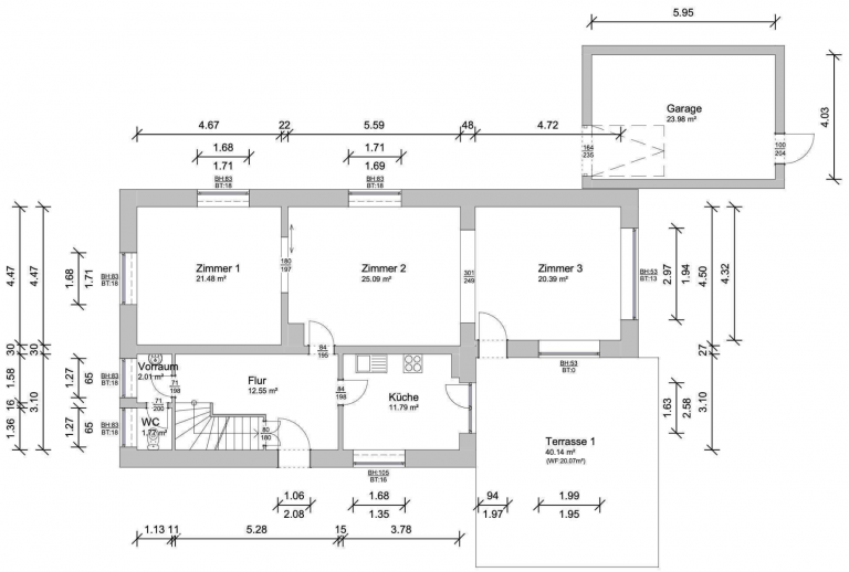
Neben dem Eingangsbereich mit einer schönen geschwungenen Holztreppe und eleganten Fliesen, die sich bis in die Küche fortsetzen, verfügt das Erdgeschoss über drei Zimmer, die jeweils mit Flügeltüren miteinander verbunden sind und somit separat genutzt oder als großzügiges Wohnkonzept genutzt werden können. Ein Zimmer ist zudem mit einem Kamin ausgestattet. Das zum Garten ausgerichtete Zimmer verfügt über großflächige Fenster, die einen wunderschönen Panoramablick auf das Grundstück bieten. Sowohl von diesem Zimmer als auch von der Küche aus ist die ca. 40 m² große Terrasse begehbar.

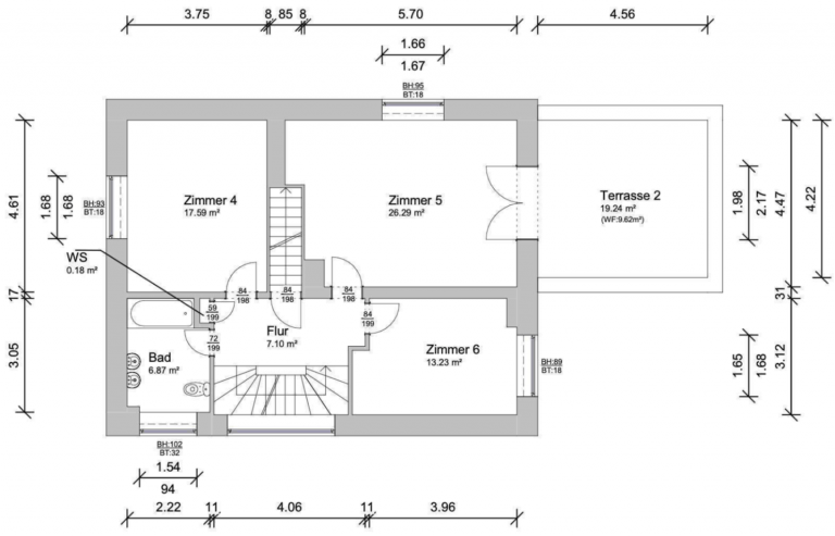
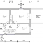
Im Obergeschoss befinden sich drei Zimmer, ein Badezimmer sowie eine große Terrassenfläche.

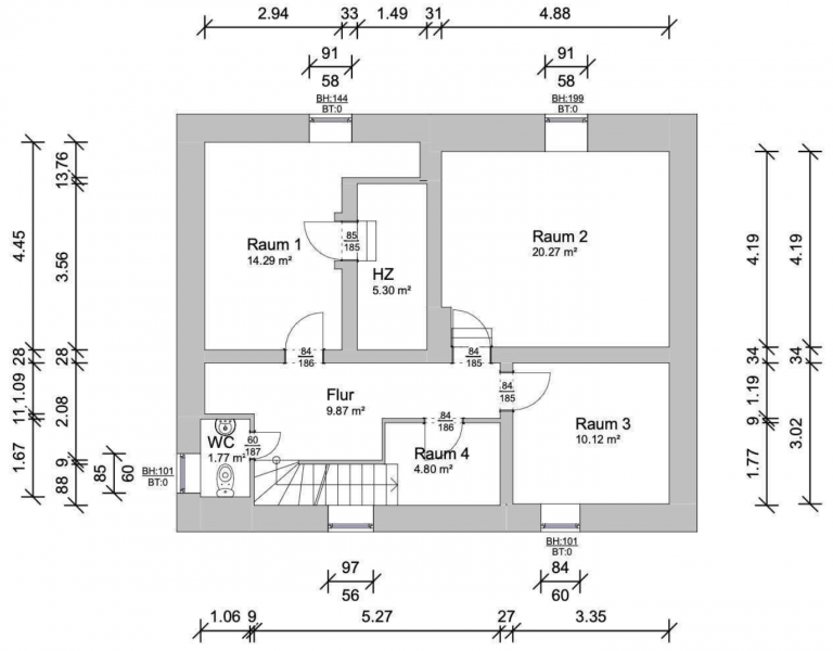
Das ausgebaute Dachgeschoss bietet einen zusätzlichen Raum sowie ein Duschbad.

Im Kellergeschoss stehen praktische Abstellflächen, Hobbyräume sowie ein WC zur Verfügung, und eine Sauna bietet die Möglichkeit zu entspannen.

Die Villa ist ausgestattet mit doppelt verglasten, teilweise bodentiefen Kunststofffenstern. Die Wohnräume im Erdgeschoss sind mit Parkettboden in Fischgrätenoptik ausgestattet. Die Zimmer im Obergeschoss sind ebenfalls mit Parkettboden und das Dachgeschoss ist mit Auslegware ausgestattet.

Weiterhin verfügt das Haus über eine Alarmanlage, und die angrenzende Garage rundet das Angebot ab.

Das Haus ist nach Absprache bezugsfrei.

Das Grundstück könnte bei Bedarf auch weiter bebaut werden und bietet ein großes Potential.

Neugierig? Wir freuen uns über Ihre Kontaktaufnahme!