Das Wohnhaus befindet sich in einer ruhigen Seitenstraße in unmittelbarer Nähe zu dem Volkspark Schöneberg.
Geschäfte des täglichen Bedarfs sind innerhalb von nur wenigen Gehminuten zu erreichen. Auch haben sich in der Gegend einige Cafés und Restaurants niedergelassen, die zu genussvollen Stunden einladen.
Wer dem Trubel der Stadt für einen Moment entfliehen möchte, findet seine Erholung im nahegelegenen Volkspark Schöneberg. Hier kann man bei erholsamen Spaziergängen die Seele baumeln lassen oder sich bei sportlichen Freizeitaktivitäten auspowern.
Die Anbindung an den ÖPNV ist ebenfalls gut. Der nahegelegene S- und U-Bahnhof "Innsbrucker Platz" bietet eine schnelle & flexible Verknüpfung in die Hotspots der Hauptstadt.
PKW-Fahrer gelangen innerhalb weniger Minuten auf die A 100.
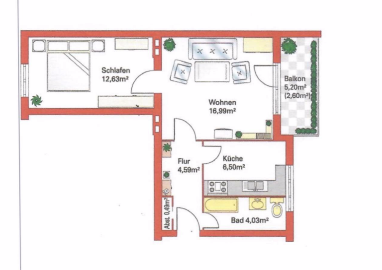
Die Wohnung ist von der Straße zurückgesetzt, ruhig im Hinterhof gelegen und befindet sich in dem 2. Obergeschoss eines 1955 errichteten Mehrfamilienhauses.
Die Wohnfläche von ca. 48 m² verteilt sich auf zwei Zimmer nebst einem tagesbelichteten Wannenbad und einer Küche. Ein zum Innenhof ausgerichteter Balkon lädt zu entspannten Stunden ein.
Eine Abstellkammer sorgt für zusätzlichen Stauraum.
Die Wohnung verfügt über 2-fach verglaste Kunststofffenster. Das Badezimmer wurde im vergangenen Jahr neu gefliest. In den Wohnräumen ist ein gemütlicher Teppichboden verlegt. Die Küche ist mit einem funktionalen Linoleum-Boden ausgestattet.
Ein Keller ist der Wohnung ebenfalls zugeteilt. Weiterhin steht den Bewohnern des Hauses ein Fahrradkeller zur Verfügung.
Die Wohnung ist seit 1993 zuverlässig vermietet. Den Mietern könnte innerhalb einer gesetzlichen Kündigungsfrist von 9 Monaten wegen Eigenbedarfs gekündigt werden. .