Referenznummer:
VK-17102_EWE10
Bezug:
leer
Lage:
Berlin-Tempelhof
Wohnfläche:
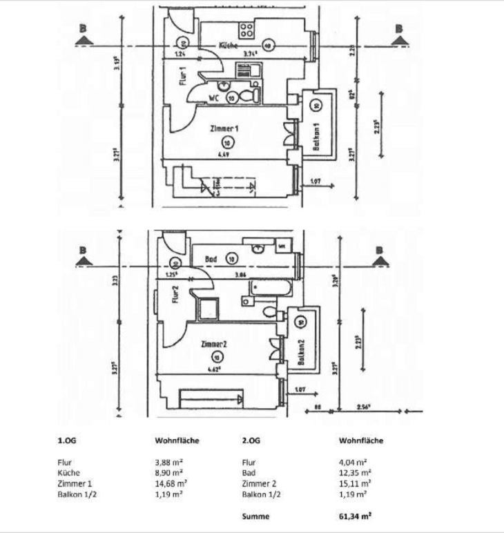
ca. 61.34m²
Zimmeranzahl:
2
Mieteinnahmen netto:
394,00 €
Energieausweis:
Liegt vor
Energieausweistyp:
Bedarfsausweis
Energieverbrauch:
131 kWh/(m²*a)
Heizungsart:
Zentralheizung
Wesentlicher Energieträger:
Erdgas leicht
Baujahr:
1913
Provision:
7,14% des Kaufpreises inkl. 19% MwSt., zahlbar vom Käufer
Kaufpreis:
209.000 €

NAHE TEMPELHOFER HAFEN - RUHIGE LAGE - ZUR ZEIT VERMIETET

Lagebeschreibung:


Die Immobilie befindet sich in einer sehr begehrten Wohngegend in Tempelhof zwischen dem Tempelhofer Damm und der Manteuffelstraße.

Der Tempelhofer Damm ist fußläufig zu errreichen . Es befinden sich dort diverse Einkaufsmöglichkeiten (z. B. Karstadt und das Einkaufszentrum „Tempelhofer Hafen“), mit zahlreichen Restaurants, Banken und Arztpraxen. Direkt am Wasser gelegen bietet der "Tempelhofer Hafen" mit diversen Cafes und Restaurants ein kleines Urlaubsfeeling.

Die öffentlichen Verkehrsmittel sind zügig zu erreichen (U-Bahn Kaiserin-Augusta-Allee), ebenso wie die Autobahnauffahrt "Tempelhof" der A100.

Objektbeschreibung:


Das Gebäude ist in ein Vorderhaus, einen Seitenflügel und ein Hinterhaus aufgeteilt. Die Wohnung befindet sich im 1. und 2. Obergeschoss des Seitenflügels und wurde aus zwei Wohnungen zu einer Maisonette zusammengelegt.

Im unteren Teil der Wohnung ist links neben dem Eingangsbereich eine großzügige Küche gelegen, die Platz für einen Essbereich bietet. Daneben befindet sich ein Gäste-WC. Weiterhin gelangt man in das Wohnzimmer, das durch die Deckenöffnung in die obere Etage einen großzügigen Eindruck vermittelt. Ein Balkon mit Westausrichtung erweitert den Wohnzimmerbereich und bietet Platz für ein gemütliches Frühstück oder ein abendliches Glas Wein.

Über die Treppe gelangt man in den oberen Bereich der Wohnung, wo das Schlafzimmer untergebracht ist, welches ebenfalls über einen Balkon verfügt. Das moderne Badezimmer erfüllt den Traum einer separaten Dusche, einer Badewanne und bietet zudem Platz für eine Waschküche. Der obere Flur wird optimal als begehbare Garderobe genutzt.

Die Wohnung vermittelt durch hohe Decken und Holzdielen den typischen Altbauflair.

Eine tolle Wohnung, die durch Ihre großzügige Raumaufteilung überzeugt und zudem ein gemütliches Wohngefühl vermittelt.

Die Fassade wird aktuell saniert, die Dachgeschosse werden ausgebaut und ein Fahrstuhl wird ans Treppenhaus angesetzt.

Das Gebäude wurde 2005 in Eigentumseinheiten aufgeteilt. Die Wohnung ist seit 2013 zuverlässig vermietet. Bei Eigenbedarf eines neuen Eigentümers besteht eine gesetzliche Kündigungsfrist von 6 Monaten gegenüber der Mieterin.