Der Berliner Bezirk Wilmersdorf gehört zu den beliebtesten Wohngegenden der Stadt, grenzt an die Stadtteile Charlottenburg und Zehlendorf und bietet eine hohe Lebensqualität.
In Wilmersdorf ist das kultivierte Berlin zu Hause. Es ist ein Wohnviertel, das besonders bekannt ist für seine exklusiven Geschäfte und die restaurierten Häuser aus der Vorkriegszeit. In unmittelbarer Nähe der Immobilie befinden sich der Preußenpark und der Olivaer Platz, sowie viele kleinere Geschäfte, Restaurants und Cafés. Im Preußenpark, der auch "Thai-Park" genannt wird, ziehen südostasiatische Imbisse Feinschmecker mit ausgefallenen Snacks und Gerichten an.
Der Kurfürstendamm bietet fußläufig diverse attraktive und exklusive Einkaufsmöglichkeiten - das Herzstück der City West und weltweit bekannt.
Viele Freizeiteinrichtungen können in der Nähe genutzt werden, unter anderem das Freibad, das Eisstadion, das Stadion Wilmersdorf für Leichtathletik, American Football und Fußball sowie zwei Schwimmhallen. Mehrere etablierte Tennisvereine befinden sich ebenfalls in der Nähe.
Die Anbindung an den öffentlichen Nahverkehr ist durch diverse nahe liegende Buslinien sowie die U-Bahnhöfe Adenauer Platz und Konstanzer Straße als optimal zu bezeichnen.
Die Stadtautobahn ist ebenfalls schnell erreichbar.
Die gepflegte Wohnanlage wurde 1976 erbaut und 2016/2017 saniert:
* Treppenhausrenovierung
* Installation einer Video-Gegensprechanlage
* neue Wohnungseingangstüren
* Instandsetzung der Fassade
* Austausch aller Fenster
* Instandsetzung der Fahrstuhlkabinen
* Ergänzung der vorhandenen Bepflanzung im Außenbereich
* Erneuerung der Kaltwasser- und Abwasserleitungen
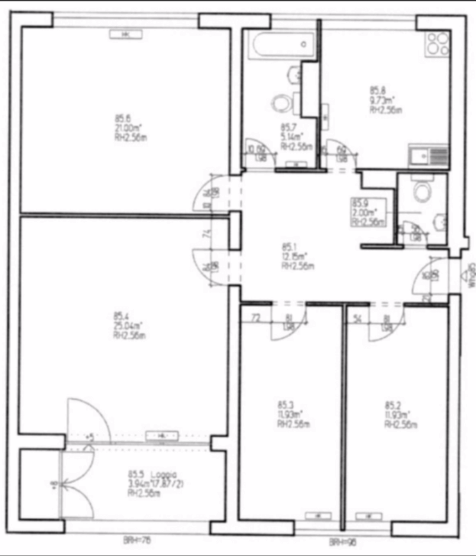
Die Wohnung befindet sich im 2. Obergeschoss, ist gut geschnitten und verfügt über ca. 103 m², die sich auf vier Zimmer verteilen.
Der Eingangsbereich bietet Platz für die Garderobe. Auf der linken Seite befinden zwei etwas kleinere Zimmer, die sich optimal als Kinder-, Arbeits- oder Gästezimmer eignen. Auf der rechten Seite befinden sich das Gäste-WC, eine geräumige Küche und das Badezimmer, welches mit einer Badewanne ausgestattet ist. Ein drittes Zimmer kann als Elternschlafzimmer genutzt werden. Das geräumige Wohnzimmer ermöglicht den Zugang zur Loggia.
Die Wohnräume sind mit dunklem Laminatboden ausgestattet, das Kinderzimmer mit Teppichboden. Das Badezimmer und das Gäste-WC sind modern gestaltet und haben weiße Wandlfliesen sowie dunkelgraue Bodenfliesen.
Abgerundet wird das Angebot durch einen Keller. Ein Tiefgaragen-Stellplatz kann optional verkauft werden.
Die Wohnung ist zuverlässig vermietet seit dem 01.10.2018. Dem Mieter wurde ein Vorkaufsrecht eingeräumt bis zum 31.10.2021.