Referenznummer:
VK-19209_WE09
Bezug:
vermietet
Lage:
Berlin-Charlottenburg
Wohnfläche:
ca. 112m²
Zimmeranzahl:
3
Mieteinnahmen netto:
397,00 €
Energieausweis:
Liegt vor
Energieausweistyp:
Bedarfsausweis
Energieverbrauch:
172.5 kWh/(m²*a)
Energieeffizienzklasse:
F
Heizungsart:
Etagenheizung
Wesentlicher Energieträger:
Erdgas leicht
Baujahr:
1933
Provision:
3,57 % des Kaufpreises inkl. 19 % MwSt., zahlbar vom Käufer
Kaufpreis:
579.000 €

NÄHE KURFÜRSTENDAMM - 3 ZIMMERWOHNUNG - ZUR ZEIT VERMIETET

Lagebeschreibung:


Die exklusive Lage in der Nähe des Kurfürstendamm ist zentral und im Herzen der Stadt.

In unmittelbarere Nähe befinden sich eine Vielzahl von Geschäften für den alltäglichen Bedarf, wie Apotheken, medizinische Einrichtungen, renommierte Restaurants, beliebte Cafés und trendige kleine Einzelhandelsgeschäfte. Der KuDamm und die Tauentzienstraße sind die bekanntesten Shopping-Meilen von Berlin. Das weltweit bekannte Einkaufszentrum KaDeWe ist ebenfalls in Laufweite.

Ein vielfältiges, internationales gastronomisches Angebot sowie die Wahl zwischen verschiedenen kleinen Delikatessgeschäften oder dem großen Supermarkt bieten eine außergewöhnliche Mischung für eine friedvolle nachbarschaftliche Lebensart von Berlinern, Zugezogenen und Touristen.

Am nahe gelegenen Los-Angeles-Platz findet man ein wenig Ruhe in der begrünten Parkanlage, aber auch der weitläufige Tiergarten befindet sich in der Nähe, um Erholung im Grünen zu finden.

Fußläufg sind diverse Bushaltestellen und die U-Bahnhöfe „Augsburger Straße“ und „Wittenbergplatz“ zu erreichen.

Objektbeschreibung:


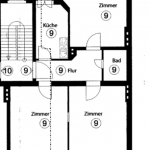
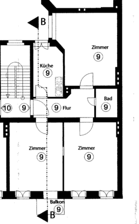
Das 1933 erbaute Wohn- und Geschäftshaus ist in ein Vorderhaus und einen Seitenflügel aufgeteilt. Die gut geschnittene Wohnung befindet sich im 3. Obergeschoss des Vorderhauses und überzeugt auf ca. 112 m² Wohnfläche durch ihren komfortablen Schnitt.

Vom Eingangsbereich aus befinden sich auf der linken Seite die Küche, sowie eines der drei großen Zimmer - hofseitig ausgerichtet. Das Badezimmer erreichen Sie am Ende des Flurs. In süd-östlicher Ausrichtung sind zwei weitere, geräumige Zimmer mit einem Durchgang gelegen, wodurch ein großzügiges Altbaugefühl vermittelt wird. Der Balkon ist zur Straße ausgerichtet und bietet einen sonnigen Platz zum Frühstücken oder um den Tag bei einem Glas Wein ausklingen zu lassen.

Es besteht weiterhin die Option, im Hofbereich zukünftig einen Balkon sowie einen Fahrstuhl anzusetzen.

Das Gebäude wurde 2019 in Eigentumseinheiten aufgeteilt. Nach Verkauf der Wohnung besteht eine 10-jährige Kündigungssperrfrist für die aktuellen Mieter.