Die Wohnanlage ist am Havelufer gelegen, im historischen Ortsteil Speicherstadt.
Als Wohn- und Arbeitsort besticht die Lage durch ihre historischen und urbanen Reize sowie die weitläufigen Wald- und Seengebiete.
Potsdam erfreut durch seine Parkanlagen um die Schlösser Sanssouci und Cecilienhof. Das Holländische Viertel und die damit angrenzende Potsdamer Innenstadt bieten alle was das Herz begehrt. Zahlreiche, erstklassige Boutiquen, Cafés und Restaurants haben sich hier niedergelassen und tragen zu dem besonderen Zauber dieses Potsdamer Viertels bei.
Das Wohnhaus hat eine gute infrastrukturelle Anbindung. Die Innenstadt von Potsdam sowie die Autobahn Richtung Berlin sind sehr gut über die neu gebaute Nuthe-Schnellstraße zu erreichen.
In unmittelbarer Umgebung befinden sich das Potsdamer Stadtschloss, das Hotel Mercure, das neue Schwimmbad BLU am Brauhausberg, das Internat Hermannswerder, ein Gymnasium sowie weitere Schulen und Kitas.
Multikulturelle Restaurants liegen umweit entfernt.
In nur wenigen Gehminuten erreichbar ist der Hauptbahnhof Potsdam mit seiner umfangreichen ausgestatteten Einkaufsinfrastruktur. Die Anbindung nach Berlin ist hervorragend.
Mit dem Fahrrad ist innerhalb weniger Minuten die Innenstadt von Potsdam erreicht. Im Sommer laden Radtouren zum Strandbad Templin oder nach Caputh ein.
Das Mehrfamilienhaus ist Teil einer Wohnanlage welche 2014 erbaut wurde.
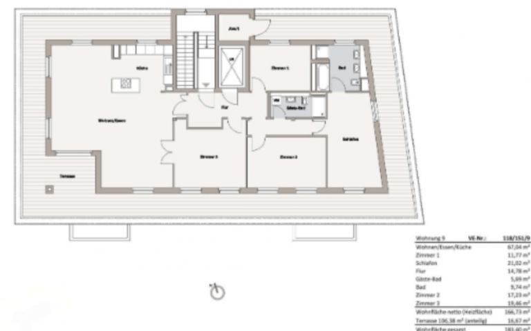
Die Dachgeschosswohnung liegt im 4. Obergeschoss, und ein Aufzug führt direkt in die Wohnung.
Auf ca. 184,40 m² verteilen sich ein Flur; ein Badezimmer mit Dusche; ein Badezimmer en-Suite mit Badewanne und separater Dusche; vier Zimmer, die als Schlaf-, Arbeits- oder Gästezimmer genutzt werden können, sowie das große Wohn-/Esszimmer mit offener Küche.
Die hier eingebaute Einbauküche mit Kochinsel gehört dem jetzigen Mieter und könnte für ca. 10.000 EUR übernommen werden.
Von allen Wohnräumen ist die ca. 106 m² große, umlaufende Terrasse begehbar welche einen schönen Blick bietet.
Die Wohnung ist modern und hochwertig ausgestattet. Die Deckenhöhe beträgt ca. 2,80 m und vermittelt ein sehr großzügiges Raumgefühl. Die Böden in den Wohnräumen sind mit einem JOKA-Designboden (Vinyl) in Parkettoptik ausgestattet.
Die Anmietung von zwei Tiefgaragen-Stellplätzen je 100 EUR/Monat ist ebenfalls möglich. Ein Kellerabteil und ein gemeinsamer Fahrradkeller runden das Angebot ab.
Die Wohnung ist ab 01.03.24 bezugsfrei.