Referenznummer:
I-21017
Bezug:
leer
Lage:
Chemnitz
Grundstücksfläche:
270m²
Wohnfläche:
ca. 612m²
Energieausweis:
Liegt vor
Energieausweistyp:
Verbrauchsausweis
Energieverbrauch:
104 kWh/(m²*a)
Energieeffizienzklasse:
D
Heizungsart:
Gas-Heizung
Wesentlicher Energieträger:
Gas
Baujahr:
1900
Provision:
3% des Kaufpreises inkl. der gesetzlichen MwSt.
Kaufpreis:
495.000 €

MEHRFAMILIENHAUS - AUSGEBAUTES DACHGESCHOSS - MIT POTENZIAL

Lagebeschreibung:


Das Mehrfamilienhaus befindet sich nahe des Zentrums im schönen Stadtteil Sonnenberg.

Geschäfte des täglichen Bedarfs sowie ein vielfältiges gastronomisches Angebot stehen zur Verfügung.

Mehrere Bus- und Straßenbahnlinien sind fußläufig erreichbar (Bus 21, 31, 51, Straßenbahn 5). Der Chemnitzer-Hauptbahnhof ist etwa 1km entfernt.

Der Stadtteil ist durch zahlreiche Schulen und Kindertageseinrichtungen sowie verschieden Apotheken und Arztehäuser sehr beliebt bei Familien mit Kindern.

Ebenso bieten die vielseitigen Kultur- und Freizeitangebote im nahegelegene Stadtzentrum oder das Stadion an der Gellertstraße viel Abwechslung. Ruhe und Entspannung sind dagegen im fußläufig zu erreichenden Naherholungsgebiet Zeissigwald zu finden.

Objektbeschreibung:


Das Wohnhaus wurde 1900 auf einem ca. 270 m² großen Grundstück erbaut.

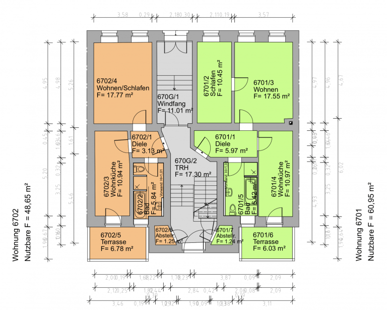
Das Gebäude verfügt über 10 Wohneinheiten, sich auf vier Geschosse und ein ausgebautes Dachgeschoss aufteilen.

Weitere Unterlagen erhalten Sie gerne auf Anfrage separat.

Wir freuen uns über Ihre Kontaktaufnahme!