





























Reinickendorf ist ein Ortsteil im gleichnamigen Bezirk Reinickendorf von Berlin. Der Ortsteil weist bereits eine vorstädtisch niedrigere Bauweise auf als der südlich angrenzende Ortsteil Wedding mit seinen Mietskasernenvierteln im Innenstadtbezirk Mitte. Im Osten schließt sich der Bezirk Pankow mit den Ortsteilen Niederschönhausen und Wilhelmsruh an, die Grenze bildet die Nordbahn. Angrenzende Ortsteile innerhalb des Bezirks Reinickendorf sind Wittenau im Norden mit dem Nordgraben auf einem Abschnitt der Ortsteilgrenze und der Arbeitersiedlung Borsigwalde sowie Tegel im Westen.
In Reinickendorf befinden sich moderne Wohnsiedlungen, wie das Märkische Viertel, und kleine historische Dörfer, wie Wittenau.
Die Immobilie befindet sich in einer ruhigen Wohnlage. Zwei Supermärkte befinden sich in unmittelbarer Nähe, und diverse Einzelhandelsgeschäfte, Cafés und Restaurants sind weiterhin in der näheren Umgebung zu finden. Kitas, Schulen und Spielplätze sind fußläufig oder mit dem Bus gut erreichbar.
Als grüner Bezirk im Nordwesten mit attraktiven Wasserflächen mit idyllischen Badestellen, dem Park Jungfernheide und dem Tegeler Forst mit Wanderwegen bietet Reinickendorf optimale Voraussetzungen für die aktive Erholung.
Eine gute Anbindung an den ÖPNV ist durch die Buslinie 128 sowie durch die U-Bahnlinien U6 und U8 gegeben.
Mit dem PKW ist in ca. 15 Minuten die Berliner City zu erreichen.
Das Reihenmittelhaus wurde 1960 massiv erbaut; ist aufgeteilt in ein Kellergeschoss, ein Erdgeschoss, ein Obergeschoss sowie einen unausgebauten Dachboden mit Ausbaupotenial.
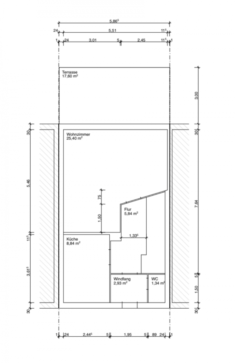
Das Haus verfügt über eine Wohnfläche von ca. ca. 91 m² und eine Grundstücksfläche von ca. 265 m².
Im Erdgeschoss des Hauses sind der Eingangsbereich mit Garderobe; eine Küche, ausgestattet mit einer Einbauküche; ein Gäste-WC und das Wohnzimmer mit einer praktischen Essecke untergebracht.
Vom Wohnzimmer aus ist die einladende Terrasse und der schöne Garten mit südlicher Ausrichtung zu begehen. Dieser Bereich bietet genügend Platz zum Grillen oder zum Sonnen für gemütliche oder auch für gesellige Zeiten.
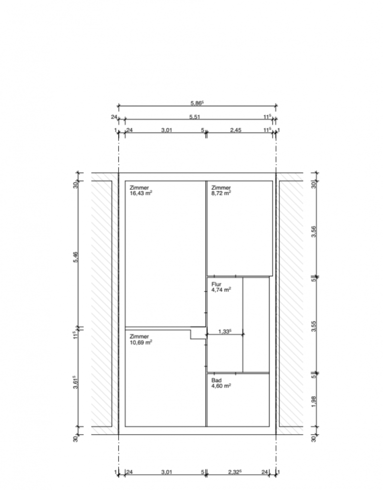
Über eine geschwungene Holztreppe ist das Obergeschoss zu erreichen. Hier befinden sich drei Schlafzimmer sowie ein tagesbelichtetes Badezimmer, ausgestattet mit einer Badewanne.
In den Wohnräumen ist praktischer Laminatboden sowie Auslegware verlegt worden. Die Wände sind tapeziert. Zudem ist das Haus mit dreifach verglasten Metallfenstern ausgestattet und im Erdgeschoss mit Jalousien versehen.
Ein Spitzboden sorgt für zusätzlichen Stauraum. Dieser Bereich bietet noch Ausbaumöglichkeiten, vorbehaltlich einer Baugenehmigung, die in den Nachbarhäusern bereits erteilt worden war.
Das Gebäude steht unter Denkmalschutz hinsichtlich der Farbgestaltung des oberen Fassadenanstriches.
Erst 2021 wurde eine neue Gas-Brennwerttherme eingebaut.
Eine Garage mit Platz für einen PKW rundet das Angebot ab.