Die Immobilie befindet sich in Prenzlauer Berg, ein sehr beliebter Stadtbezirk im östlichen Zentrum von Berlin. Prenzlauer Berg ist geprägt durch Altbauten, die größtenteils aus der Zeit um die Wende zum 20. Jahrhundert (1889 bis 1905) stammen. Über 80 Prozent aller Wohnungen des Gebiets entstanden vor 1948.
Das Gebäude ist in einer ruhigen Seitenstraße der Prenzlauer Allee gelegen. In der Nähe befinden sich viele Parkanlagen, unter anderem der Ernst-Thälmann-Park, Kollwitzplatz, Volkspark Friedrichshain und der Mauerpark.
Einkaufsmöglichkeiten für den täglichen Bedarf sind in der Nähe zu erreichen. Eine große Auswahl an Cafés und Restaurants findet man in unmittelbarer Nähe in Richtung des Kollwitzplatz.
Eine gute Anbindung an den ÖPNV ist durch naheliegende Tramlinien (Tramlinie M2 und M10), sowie den U-Bahnhof Eberswalder Str. und den S-Bahnhof Greifswalder Str. gegeben.
Das gepflegte 5-geschossige Mehrfamilienhaus aus dem Jahr 1910 besteht aus einem Vorder- sowie einem Hinterhaus und verfügt über einen mit Glas überdachten Innenhof.
Die zum Verkauf stehende Wohnung ist im Vorderhaus gelegen und befindet sich im dritten Obergeschoss rechts. Sie ist bequem über den Aufzug erreichbar.
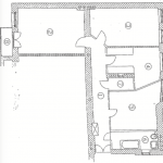
Die Wohnung verfügt über eine Wohnfläche von ca. 87,5 m². Diese verteilt sich auf insgesamt drei Zimmer nebst einem Wannenbad und einer Küche. Ein Balkon mit einer nord-östlichen Ausrichtung lädt zu erholsamen Stunden ein.
Ein Keller ist der Wohnung ebenfalls zugeteilt.
Die Wohnung ist seit November 1995 zuverlässig vermietet. Dem Mieter steht nach Verkauf der Wohnung eine 10-jährige Kündigungssperrfrist zu.