Referenznummer:
VK-24147
Bezug:
leer
Lage:
Berlin-Neu-Hohenschönhausen
Grundstücksfläche:
501m²
Wohnfläche:
ca. 145.28m²
Zimmeranzahl:
5
Energieausweis:
Liegt vor
Energieausweistyp:
Bedarfsausweis
Energieverbrauch:
104.6 kWh/(m²*a)
Energieeffizienzklasse:
D
Heizungsart:
Fußbodenheizung
Wesentlicher Energieträger:
Erdgas H
Baujahr:
2012
Provision:
3,57% des Kaufpreises inkl. 19% MwSt., zahlbar vom Käufer.
Kaufpreis:
699.000 €

IDYLLISCHES GRUNDSTÜCK MIT MEHR BLICK - DIREKT AM NATURSCHUTZGEBIET - MASSIV GEBAUT & MODERN

Lagebeschreibung:


Neu-Hohenschönhausen ist ein Ortsteil im Bezirk Lichtenberg in Berlin. Er umschließt das Neubaugebiet Hohenschönhausen-Nord. Der Ortsteil entstand im Jahr 2002 aus Gebieten der Ortsteile Malchow, Wartenberg und
Falkenberg.

Umgeben von viel Grün liegt das Einfamilienhaus zwischen dem Malchower See und dem Ortsteil Wartenberg. Das Grundstück hat eine ganz besondere Lage, direkt am Naturschutzgebiet Wartenberger Feldflur -Yoga für die Augen!

Im Ortsteil Wartenberg liegt ein Teil der Wartenberger und Falkenberger Feldflur, eine große Fläche, die teilweise auch landwirtschaftlich genutzt wird. Das Bezirksamt Lichtenberg hat dieses Gebiet im Mai 2023 als neues Landschaftsgebiet ausgewiesen.
Der Landschaftspark Wartenberger Feldmark wird gerne von Spaziergängern, Radfahrern und Skatern genutzt.

Zum Shoppen und Verweilen lädt das nahgelegene Linden Center mit ca. 90 Geschäften ein.

Schulen, Kitas, Ärzte und Einkaufsmöglichkeiten befinden sich im näheren Umfeld.

Eine gute Anbindung an den öffentlichen Nahverkehr ist ebenfalls gegeben. Der S-Bahnhof S-Wartenberg liegt südlich des Ortsteils in Neu-Hohenschönhausen. Der Ortsteil wird durch zwei Buslinien bedient. Mit dem Bus der Linie 256 bestehen Fahrmöglichkeiten über Neu- und Alt-Hohenschönhausen nach Lichtenberg. Nachts verkehrt die Buslinie N56 als Ringlinie von Wartenberg über Alt- und Neu-Hohenschönhausen.

Mit dem PKW sind alle anderen Stadtteile zudem gut erreichbar.

Objektbeschreibung:


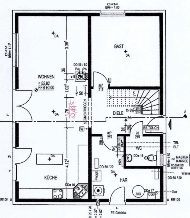
Das äußerst gepflegte und moderne Einfamilienhaus wurde im Jahr 2012 auf einem ca. 532 m² großen Grundstück errichtet, und über zwei Etagen verteilt sich eine Wohnfläche von ca. 145 m².

Die Erdgeschossebene teilt sich auf in einen einladenden Eingangsbereich, ein Gästezimmer bzw. Arbeitszimmer, ein modernes Duschbad mit Handtuchwärmer, einen Hauswirtschaftsraum mit praktischem Zugang zum Gartenbereich sowie einen großzügigen Wohn-/Essbereich. Die offene Küche, die nahtlos in den Wohnraum übergeht, ist mit einer hochwertigen Einbauküche und einer praktischen Kochinsel ausgestattet. Die westlich ausgerichtete und sonnige Terrasse bietet einen schönen Blick in den gepflegten Garten.

In der oberen Ebene befinden sich drei Schlafzimmer und ein großes Badezimmer, ausgestattet mit einer Badewanne und einer separaten, ebenerdigen Dusche.

Der Boden der Erdgeschossebene ist mit großflächigen Fliesen versehen, während in der oberen Ebene ein pflegeleichter Laminatboden verlegt wurde. Die Wände sind verspachtelt. Das Haus ist mit dreifach verglasten Kunststofffenstern ausgestattet, die im Erdgeschoss über elektrische Jalousien und im oberen Geschoss über manuelle Jalousien verfügen. Mit einer Deckenhöhe von ca. 2,60m vermittelt das Haus ein angenehmes Raumgefühl.

Eine Fußbodenheizung, eine Vorrichtung für einen Kamin sowie eine Solaranlage runden das Angebot ab.

Das Grundstück ist mit einem Carport bebaut, der Platz für zwei PKW bietet.