Referenznummer:
VK-22164
Bezug:
vermietet
Lage:
Brandenburg-Schönefeld
Grundstücksfläche:
370m²
Wohnfläche:
ca. 127m²
Zimmeranzahl:
5
Mieteinnahmen netto:
870,00 €
Energieausweis:
Liegt vor
Energieausweistyp:
Verbrauchsausweis
Energieverbrauch:
149 kWh/(m²*a)
Energieeffizienzklasse:
E
Heizungsart:
Etagenheizung
Wesentlicher Energieträger:
Erdgas leicht
Baujahr:
1993
Provision:
3,57% des Kaufpreises inkl. 19% MwSt., zahlbar vom Käufer.
Kaufpreis:
399.000 €

IDYLLISCHE WOHNLAGE - GROSSER GARTEN, GARAGE, UNTERKELLERT & AUSGEBAUTES DACH - ZUR ZEIT VERMIETET

Lagebeschreibung:


Schönefeld liegt im brandenburgischen Landkreis Dahme-Spreewald und grenzt direkt an den Südosten Berlins mit den Ortsteilen Lichtenrade, Gropiusstadt, 
Buckow, Rudow, Bohnsdorf und dem Kosmosviertel in Altglienicke.

Die Immobilie liegt in der Gemeinde Rotberg. Der neu hergestellte Dorfplatz mit dem Backhaus und der Kirche aus dem 14. Jahrhundert bildet heute das Zentrum von Rotberg.

Die ruhige Nachbarschaft ist geprägt durch Einfamilien- und Reihenhäusern. Für Naturliebhaber Natur pur und doch stadtnah präsentiert sich Waltersdorf, ein beliebter Ortsteil Schönefelds, seinen Bewohnern.

In etwa 10 Minuten Fahrzeit mit dem PKW , direkt an der A10 gelegen, sind die Freizeit- und Einkaufsmöglichkeiten des A10-Center zu erreichen. Eine neue Shoppingwelt mit großen Marken und viel Mode sowie mit kulinarischer Abwechslung für jeden Geschmack.

Weiterhin ist mit dem PKW das Berliner Zentrum über die A113 sowie die B96 schnell zu erreichen. Die öffentliche Verkehrsanbindung an die Berliner City ist durch die S-Bahn und verschiedene Busverbindungen gewährleistet. Für Angestellte und alle Vielflieger ist die Nähe zum Großflughafen BER ideal.

Objektbeschreibung:


Das Reiheneckhaus wurde 1996 erbaut und befindet sich auf einem ca. 370 m² großem Grundstück.

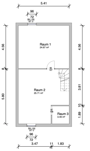
Das Haus verfügt über eine Wohnfläche von ca. 127 m² und ist in ein Erdgeschoss, ein Obergeschoss, ein Dachgeschoss, und in ein Kellergeschoss aufgeteilt.

Im Erdgeschoss des Hauses befinden sich der Eingangsbereich nebst Gäste-WC, die Küche und der großzügig geschnittene Wohn-/ Essbereich mit Süd-West-Ausrichtung und Zugang in den liebevoll angelegten Garten.

Die ca. 18 m² große Terrasse lädt zum Verweilen ein. Der Garten ist idyllisch angelegt, bietet viel Grünfläche und einen Grill-Platz. Zur Unterbringung von Bestuhlung, Sonnenschutz oder auch von Fahrrädern bietet sich der Schuppen an.

Im Obergeschoss befinden sich drei Schlafzimmer und das tagesbelichtete Badezimmer, welches mit einer Dusche und einer Badewanne ausgestattet ist.

Zudem verfügt das Haus über ein ausgebautes Dachgeschoss mit einem weiteren großen Raum nebst Technikraum, in dem auch die Heizung untergebracht ist. Im Kellerbereich sind praktische Nutzflächen vorhanden, die sich als Stauraum oder Hobby-Räume eignen.

Die Deckenhöhe im Erd- und Obergeschoss beträgt ca. 2,40m, das Dachgeschoss misst am höchsten Punkt 3,45m. Alle Wände sind tapeziert.

Im Erdgeschoss sind der Eingangsbereich, das Gäste-WC und die Küche gefliest. Das Wohnzimmer ist mit Parkettboden ausgestattet. Das Obergeschoss und Dachgeschoss verfügen über einen Laminat-Boden, ausgenommen ist das geflieste Bad, in dem Fliesen, und ein Kinderzimmer, in dem Auslegware verlegt sind. Die Warmwasseraufbereitung des Hauses erfolgt über Durchlauferhitzer.

Das Grundstück bietet zudem eine Garage und einen PKW-Außenstellplatz.

Das Haus ist seit 2010 vermietet. Die monatliche Nettokaltmiete beläuft sich auf 870 EUR. Ein neuer Eigentümer kann das Mietverhältnis mit einer Frist von 9 Monaten innerhalb der gesetzlichen Bestimmungen wegen Eigenbedarfs kündigen.