Französisch Buchholz ist ein Berliner Ortsteil im Bezirk Pankow, der überwiegend durch Einfamilienhäuser und lediglich 20% Mehrfamilienhäuser geprägt ist. Durch die offene Bauweise und ausgedehnte Grünflächen gestaltet sich Französisch Buchholz als besonders angenehme Wohngegend für Familien und Naturliebhaber.
So bieten sich zahlreiche Freizeit- und Erholungsmöglichkeiten aufgrund der Nähe zum Botanischen Volkspark Blankenfelde, der Panke oder den Karower Teichen. Selbst Golfer haben einen kurzen Weg in das nahegelegene Golf Resort Berlin Pankow.
Für Einkäufe des täglichen Bedarfs stehen verschiedene Supermärkte, wie REWE oder Netto, und auch ein Drogeriemarkt in der näheren Umgebung zur Verfügung. Um einen Einkaufsbummel zu machen, bietet sich ein Besuch rund um das Rathaus Pankow an.
Als familienfreundliche Gegend steht ein Angebot an Kindergärten, Kitas, Grund- und Oberschulen zur Verfügung.
Der Bus der Linie 259 sowie die Tram der Linie 50 sind fußläufig zu erreichen. Mit dem PKW ist eine gute Verbindung sowohl nach Norden ins Berliner Umland oder in die Berliner City gegeben.
Die Wohnanlage wurde 1996 erbaut und präsentiert sich in einem gepflegten Zustand mit schön angelegten Außenanlagen.
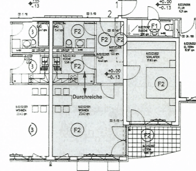
Die Wohnung befindet sich im Erdgeschoss.
Über ca. 63,29m² verteilen sich ein Flur; ein Badezimmer mit Badewanne und Waschmaschinenanschluss; ein Schlafzimmer; eine Küche, ausgestattet mit einer hellen Einbauküche und praktischer Durchreiche, und ein Wohnzimmer mit Zugang zu einer hübschen Terrasse. Diese eignet sich zum Erholen und Entspannen, für ein Frühstück mit Blick ins Grüne oder ein entspanntes Abendessen an der frischen Luft.
Der Flur und die Wohnräume sind mit einem praktischen Laminatboden ausgestattet. Die Wände sind tapeziert, und die Kunststofffenster verfügen über eine zweifache Verglasung. Die Deckenhöhe beträgt ca. 2,45m und vermittelt ein angenehmes Raumgefühl.
Ein Kellerabteil, ein Fahrradkeller, ein Trockenraum sowie ein großer Gemeinschaftsgarten runden das Angebot ab.
Ein Tiefgaragenstellplatz könnte nach Verfügbarkeit angemietet werden.
Die Wohnung ist seit dem 01.01.2013 zuverlässig vermietet. Ein neuer Eigentümer kann das Mietverhältnis mit einer Frist von 9 Monaten innerhalb der gesetzlichen Bestimmungen wegen Eigenbedarfs kündigen.