Referenznummer:
VK-20312
Bezug:
leer
Lage:
Berlin-Kladow
Grundstücksfläche:
483m²
Wohnfläche:
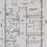
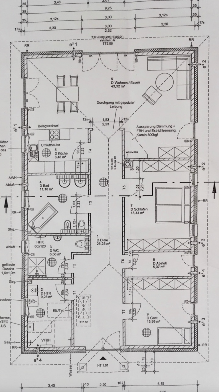
ca. 142.49m²
Zimmeranzahl:
3
Energieausweis:
Liegt vor
Energieausweistyp:
Verbrauchsausweis
Energieverbrauch:
113.5 kWh/(m²*a)
Energieeffizienzklasse:
D
Heizungsart:
Fußbodenheizung
Wesentlicher Energieträger:
Erdgas leicht
Baujahr:
2013
Provision:
7,14 % des Kaufpreises inkl 19 % MwSt., zahlbar vom Käufer
Kaufpreis:
745.000 €

HOCHWERTIG AUSGESTATTETER BUNGALOW - GROSSZÜGIG GEPLANT & BARRIEREFREI - RUHIG, GRÜN & IDYLLISCH

Lagebeschreibung:


Kladow ist der südlichste Ortsteil des Berliner Bezirks Spandau und ist ein gemütlicher Ort mit dörflichem Flair und vorbildlicher Infrastruktur, umgeben von herrlicher Landschaft am Westufer der Havel.

Der ruhig gelegene Bungalow liegt in unmittelbarer Nähe zum Wald und zum Groß Glienicker See, der im Sommer zum Baden einlädt.

Die Ortschaft Kladow mit dem kleinen Promenadehafen und BVG-Fähranleger bietet alle Einkaufsmöglichkeiten des täglichen Bedarfs und eine gute ärztliche Versorgung. Des Weiteren befinden sich ein Kindergarten, eine Grundschule sowie das Hans-Carossa-Gymnasium in der Nähe des Bungalows.

Die Uferpromenade Kladow und der Berliner Golf Club Gatow e.V. sind innerhalb von wenigen Minuten erreichbar für Erholung, Entspannung oder sportliche Aktivitäten.

Die Fahrzeit mit dem PKW zum Zentrum in Spandau beträgt ca. 15 Minuten, zum Zentrum in Charlottenburg ca. 30 Minuten.

Die Buslinie X34 ist in wenigen Minuten fußläufig zu erreichen und führt direkt zum S-/U-Bahnhof Zoologischen Garten. Von hier aus besteht eine optimale Verbindung in alle anderen Bezirke der Stadt.

Objektbeschreibung:


EINZIEHEN & WOHLFÜHLEN!

Der Bungalow wurde erst 2013 gebaut und sticht aus der Bebauung der Nachbarschaft mit seiner fröhlich-gelben Fassade hervor, die ein italienisches Ambiente vermittelt. Die Wohnfläche beträgt ca. 143 m² - großzügig und barrierefrei geplant.

Der Eingangsbereich bietet ausreichend Platz für die Garderobe und auch für eine bequeme Sitzmöglichkeit.

Zwei Schlafzimmer, ein Duschbad und ein Wannenbad stehen zur Verfügung. Weiterhin ist ein praktischer Abstellraum und ein großer Hauswirtschaftsraum mit Tageslicht vorhanden, in dem auch die Haustechnik untergebracht ist.

Herzstück des Bungalows ist der ca. 45m² große Wohn-/Essbereich mit offener Küche, welche mit einer hochwertigen Einbauküche (Neuwert ca. 30.000 EUR) ausgestattet ist. Die drei bodentiefen, doppelflügigen Fenster fungieren als Türen und ermöglichen direkten Zugang zum Garten bzw. zur Auffahrt. Das Wohnzimmer beinhaltet einen exklusiven Marmor-Eckkamin, der zu gemütlichen Stunden insbesondere in den Wintermonaten einlädt.

Bei schönem Wetter laden die Terrasse und der sehr gepflegte und liebevoll gestaltete Gartenbereich ein. Ein runder Granit-Steintisch mit drehbarer Mittelplatte und mit schmiedeeisernen Stühlen bietet genügend Platz beim Grillen für eine gemütliche Runde mit bis zu 13 Personen.

Gartenmöbel und -geräte finden Platz in einem großen Gartenhaus. Zusätzlicher Stauraum ist im Dachboden geboten.

Zudem stehen in einer beheizten und hochwertig ausgestatteten Anbaugarage ein PKW-Stellplatz und drei weitere PKW-Stellplätze auf dem Grundstück zur Verfügung. Sowohl das Rolltor als auch das Schiebetor sind bequem aus dem Fahrzeug heraus über eine Fernbedienung elektrisch steuerbar. Die Garage verfügt über einen direkten Zugang zum Garten.

Der Bungalow wird mit einer modernen Gas-Solarkombination über eine Fußbodenheizung beheizt. Elektrische Rollläden an allen Fenstern und eine elektrische Markise bieten einen hohen Komfort. Hochwertige Bodenliesen und Parkettböden in den Schlafzimmern und im Wohn-/Esszimmer wirken elegant.

Der Bungalow ist bezugsfrei. Nach Absprache kann auf Wunsch auch das sehr geschmackvolle Mobiliar übernommen werden.