Die Wohnung liegt in Berlin-Tempelhof. U- und S-Bahn sind in nur wenigen Minuten fußläufig erreichbar.
Sämtliche Einkaufsmöglichkeiten des täglichen Bedarfs befinden sich in unmittelbarer Nähe.
Das Tempelhofer Feld und der legendäre Flughafen Tempelhof liegen in Sichtweite und laden zu erholsamen Spaziergängen ein.
Die Anbindung an die Stadtautobahn ist durch die nahgelegene Auffahrt Tempelhof ebenfalls sehr gut.
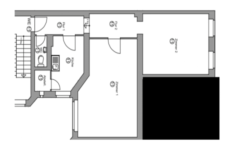
Die Wohnung befindet sich im 2. Obergeschoss des Seitenflügels eines Berliner Altbaus aus dem Jahr 1896.
Auf ca. 63 m² Wohnfläche verfügt sie über 2 geräumige Zimmer, 1 Küche und 1 Bad.
Die Wohnung ist seit 2007 zuverlässig vermietet und eignet sich hervorragend als Kapitalanlage.
Das Gebäude wurde in 2013 in Eigentumswohnungen aufgeteilt. Nach Verkauf der Wohnung besteht eine 10-jährige Kündigungssperrfrist für die aktuellen Mieter.