Referenznummer:
VK-19204
Bezug:
leer
Lage:
Berlin-Hellersdorf
Wohnfläche:
ca. 89m²
Zimmeranzahl:
3
Energieausweis:
Liegt vor
Energieausweistyp:
Verbrauchsausweis
Energieverbrauch:
87 kWh/(m²*a)
Energieeffizienzklasse:
C
Heizungsart:
Zentralheizung
Wesentlicher Energieträger:
Fernwärme
Baujahr:
1991
Provision:
7,14 % des Kaufpreises inkl 19 % MwSt., zahlbar vom Käufer
Kaufpreis:
249 €

GROSSZÜGIGER SCHNITT - EINZIGARTIGE TERRASSE ZUM WOHLFÜHLEN & ENTSPANNEN - BEZUGSFREI

Lagebeschreibung:


Die Immobilie befindet sich im Berliner Stadtteil Hellersdorf, nahe der Berliner Stadtgrenze. Die ruhige Wohngegend zeichnet sich durch verschiedene fußläufig zu erreichende Parkanlagen und Grünflächen aus. Trotz der ruhigen Umgebung ist die Infrastruktur sehr gut.

Verschiedene Geschäfte, Arztpraxen und Einkaufsmöglichkeiten für den täglichen Bedarf befinden sich in unmittelbarer Nähe und sind fußläufig zu erreichen.

Die Einkaufspassage HEP in Hönow, sowie der Kaufpark Eiche und das Hellersdorfer Marktplatz-Center bieten den Shopping-Begeisterten eine Vielfalt an Geschäften.

Die U-Bahn-Stationen Louis-Lewin-Straße oder Hönow sind in wenigen Minuten zu erreichen und ermöglichen in ca. 25 Minuten Fahrtzeit eine direkte Verbindung ins Zentrum Berlins.

Objektbeschreibung:


Die Wohnung befindet sich in einer Wohnanlage, die 1989 erbaut worden ist.

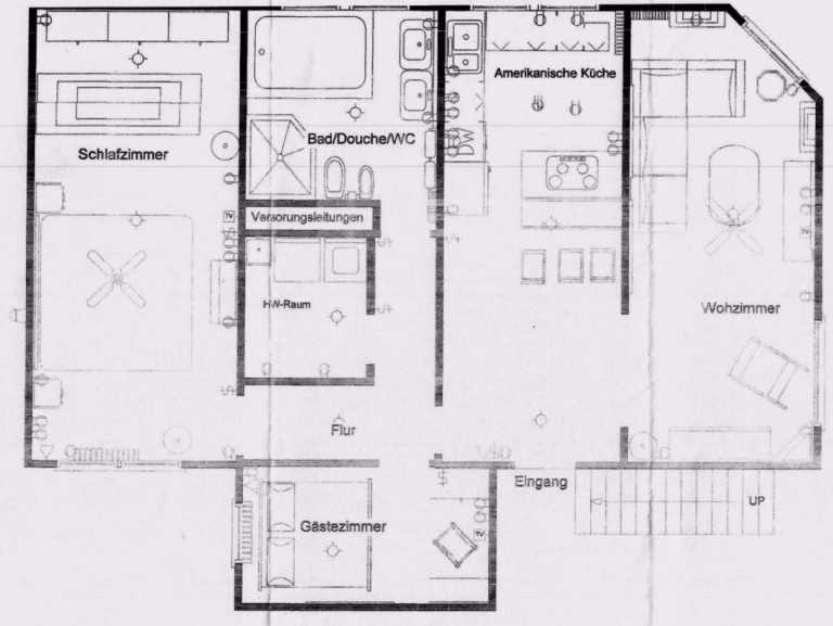
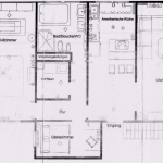
Etwa 89 m² Wohnfläche verteilen sich auf drei Zimmer. Im Eingangsbereich macht sich schon die großzügige Aufteilung der Wohnung bemerkbar. Eine offene Küche mit Küchentresen wirkt modern und sogleich gemütlich. Das Schlafzimmer ist groß genug für einen Ankleidebereich. Weiterhin steht ein Arbeitszimmer bzw. Kinderzimmer zur Verfügung.

Das Badezimmer ist modern, und die sanitären Elemente sind funktional angeordnet. Eine Badewanne und eine separate Dusche sorgen für einen hohen Komfort. Eine Abstellkammer bietet funktionalen Stauraum sowie Platz für die Waschmaschine und den Trockner.

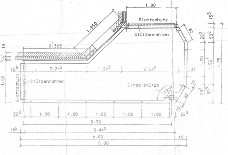
Das Wohnzimmer hat eine angenehme Größe und bietet Zugang zu der Terrasse, die sich genau an der Ecke des Gebäudes befindet und über eine großzügige, einladende Fläche verfügt, die zum Entspannen und Wohlfühlen einlädt.

Die Räume sind gefliest bzw. mit Laminatboden versehen, und ein Keller rundet das Angebot ab.

Die Wohnung ist ab Januar 2020 bezugsfrei.