Referenznummer:
VK-20457_TW97_WE17
Bezug:
vermietet
Lage:
Berlin-Charlottenburg
Wohnfläche:
ca. 184.73m²
Zimmeranzahl:
5
Mieteinnahmen netto:
842,00 €
Energieausweis:
Liegt vor
Energieausweistyp:
Bedarfsausweis
Energieverbrauch:
223.3 kWh/(m²*a)
Energieeffizienzklasse:
G
Heizungsart:
Etagenheizung
Wesentlicher Energieträger:
Gas
Baujahr:
1912
Provision:
3,57% des Kaufpreises inkl 19 % MwSt., zahlbar vom Käufer
Kaufpreis:
879.007 €

GROSSZÜGIGE ALTBAUWOHNUNG MIT 2 BALKONEN - SPREE-LAGE - ZUR ZEIT VERMIETET

Lagebeschreibung:


Charlottenburg ist ein Ortsteil des Bezirks Charlottenburg-Wilmersdorf von Berlin. Immobilien in dieser zentralen Lage sind sehr begehrt.

Zahlreiche Museen, wie das Bröhan-Museum für Jugendstil und Art déco, das Museum Berggruen und das Käthe-Kollwitz-Museum machen Charlottenburg zu einem wichtigen Kulturstandort. Die Deutsche Oper Berlin oder das Schillertheater reihen sich hier ein. Musiktheater, Literaturhäuser und Bühnen verschiedener Ausrichtungen machen das Leben in Charlottenburg bunt und abwechslungsreich.

Die Immobilie befindet sich in Wasserlage mit Blick auf die Spree und den Schlosspark. Das Schloss Charlottenburg mit dem herrlich angelegten Schlossgarten, die Orangerie und das Mausoleum sowie der Lietzenseepark und die Jungfernheide bieten Erholung sowie viele Möglichkeiten der Freizeitgestaltung.

Charlottenburg ist Heimat der Technischen Universität und der Universität der Künste, was ein junges quirliges Leben der Studenten mit sich bringt.

Diverse Einzelhandelsgeschäfte befinden sich in unmittelbarer Nähe. Eine größere Auswahl an Geschäften und Kaufhäusern, beliebten Cafés und Restaurants befinden sich in der Wilmersdorfer Straße, einer der größten Einkaufsstraßen Berlins.

Die ärztliche Versorgung ist durch mehrere Arztpraxen, Therapeuten und Apotheken sowie die DRK-Kliniken Berlin-Westend gesichert.

Eine sehr gute Anbindung an den ÖPNV ist verfügbar durch verschiedene Buslinien (109, M27, M45) und durch die U-Bahn-Station Mierendorffplatz sowie die S-Bahn-Stationen Jungfernheide oder Westend. In wenigen Minuten ist die Stadtautobahn A100 in nördliche und westliche Richtung mit dem PKW zu erreichen.

Objektbeschreibung:


Das Wohn- und Geschäftshaus-Ensemble wurde 1912 erbaut und bildet ein Karree mit zwei Hauseingängen. Die Hauseingänge und Treppenhäuser repräsentieren die Baukunst der Gründerzeit.

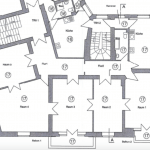
Die Wohnung befindet sich im vierten Obergeschoss und verfügt über ca. 184,73 m² Wohnfläche, die sich auf fünf Zimmer, die Küche sowie ein Wannenbad und ein Gäste-Wc verteilt.
Auch verfügt die Wohnung über zwei Balkone, von denen man einen seitlichen Blick auf die Spree genießen kann.

Die Wohnung vermittelt durch eine Raumhöhe von ca. 3,75m ein großzügiges Raumgefühl.

Die Wohnräume sind mit Holzdielen ausgestattet, das Gäste-Wc ist gefliest, in der Küche und dem Wannenbad ist ein Linoleum-Boden verlegt.

Die Zimmer verfügen teilweise über begehrte Altbau-Elemente wie Flügeltüren, Holz-Doppelkastenfenster und alte Türbeschläge sind ebenfalls vorhanden.

Die Wohnung ist seit Mai 2000 zuverlässig vermietet. Ab März 2029 kann das Mietverhältnis wegen Eigenbedarfs mit einer Frist von 9 Monaten innerhalb der gesetzlichen Bestimmungen gekündigt werden.