Referenznummer:
VK-22363
Bezug:
leer
Lage:
Berlin-Buckow
Grundstücksfläche:
583m²
Wohnfläche:
ca. 94m²
Zimmeranzahl:
4
Energieausweis:
Liegt vor
Energieausweistyp:
Verbrauchsausweis
Energieverbrauch:
202 kWh/(m²*a)
Energieeffizienzklasse:
G
Heizungsart:
Zentralheizung
Wesentlicher Energieträger:
Öl
Baujahr:
1968
Provision:
Gemäß der gesetzlichen Regelung zur Teilung der Maklercourtage beträgt die Provision 3,57% des Kaufpreises inklusive 19% MwSt. jeweils in gleicher Höhe für die Verkäuferseite sowie für die Käuferseite.
Kaufpreis:
449.000 €

GROSSER GARTEN IN RUHIGER LAGE - SONNIGE TERRASSE, KELLER & GARAGE - ZUM SELBSTVERWIRKLICHEN

Lagebeschreibung:


Der Ortsteil Buckow befindet sich im südlichen Bereich von Berlin, im Bezirk Neukölln.

Während Neukölln ein Stadtteil im Wandel und ein kultureller Schmelztiegel ist, hat sich Buckow seine Gelassenheit bewahrt.
Dank der Lage vereinen sich entspanntes Wohnen in attraktiver Grünlage mit den Vorzügen der Großstadt vor der Haustür.

Geschäfte, Arztpraxen, Restaurants und Cafés befinden sich naheliegend an der Marienfelder Chaussee oder in Alt-Buckow.

Ein Spaziergang im schönen Britzer Garten, dem ehemaligen BUGA-Gelände, oder ein Bummel durch Alt-Buckow mit seinem historischen Ensemble und der
im 13. Jahrhundert erbauten Dorfkirche bieten sich in dieser Lage an.

Eine gute Anbindung ist durch verschiedene Buslinien und die S- Bahnlinie S2 gesichert.
Mit dem PKW besteht über die Zufahrt zur A113 ein schneller Anschluss in die Innenstadt (Stadtautobahn A100) und auch stadtauswärts zum Berliner Ring (A10).

Objektbeschreibung:


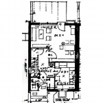
Das Reihenendhaus wurde 1968 auf einem ca. 583 m2 Grundstück erbaut und verfügt über eine Wohnfläche von ca. 94 m2.

Im Erdgeschoss des Hauses sind der Eingangsbereich mit Platz für die Garderobe; eine Küche; ein Gäste-WC und das Wohnzimmer untergebracht.
Vom Wohnzimmer aus sind die überdachte, südlich ausgerichtete Terrasse und der Garten zu begehen - genügend Platz zum Grillen oder zum Sonnen,
für gemütliche oder für gesellige Zeiten.

Über eine geschwungene Holztreppe ist das Oberschoss zu erreichen. Hier befinden sich drei Zimmer und ein Badezimmer, ausgestattet mit einer
Dusche und Waschmaschinenanschluss.

Ein Spitzboden bietet weiteren Stauraum. Das Dach wurde im Jahr 2017 zusätzlich gedämmt.

Das Wohnzimmer ist mit Stäbchenparkett ausgestattet, der Eingangsbereich ist gefliest, und die oberen Räume sind mit einer Auslegware versehen.
Die Kunststofffenster sind doppelt verglast, nur das Wohnzimmer ist mit Holzfenstern ausgestattet.

Das Haus ist voll unterkellert und bietet hier viel Nutzfläche.

Abgerundet wird das Angebot durch eine Garage.