Referenznummer:
VK-23157
Bezug:
vermietet
Lage:
Berlin-Marzahn
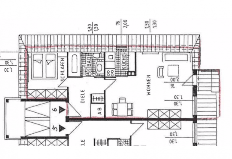
Wohnfläche:
ca. 48m²
Zimmeranzahl:
2
Mieteinnahmen netto:
387,00 €
Energieausweis:
Liegt vor
Energieausweistyp:
Verbrauchsausweis
Energieverbrauch:
115 kWh/(m²*a)
Energieeffizienzklasse:
E
Heizungsart:
Zentalheizung
Wesentlicher Energieträger:
Erdgas leicht
Baujahr:
1995
Provision:
Gemäß der gesetzlichen Regelung zur Teilung der Maklercourtage beträgt die Provision 3,57% des Kaufpreises inklusive 19% MwSt. jeweils in gleicher Höhe für die Verkäuferseite sowie für die Käuferseite.
Kaufpreis:
149.000 €

GEPFLEGTES DACHGESCHOSS MIT SÜDBALKON & PKW-STELLPLATZ - NAHE WASSER & WALD - ZUR ZEIT VERMIETET

Lagebeschreibung:


Mahlsdorf ist ein Ortsteil im Bezirk Marzahn-Hellersdorf in Berlin. Zusammen mit Biesdorf und Kaulsdorf befindet sich hier Deutschlands größtes zusammenhängendes Gebiet mit Ein- und Zweifamilienhäusern. Die Immobilie befindet sich in Mahlsdorf, nahe der Spree, des Großen Müggelsees und den Kaulsdorfer Seen.

Die Wohngegend ist äußerst beliebt und zeichnet sich durch ihren hohen Erholungswert aus.

Der Neuenhagener Mühlenfließ bietet als Naturschutzgebiet eine Auswahl der schönsten Wanderwege für Naturliebhaber entlang der Erpe.

Der Volkspark Wuhlheide ist ein beliebtes Ausflugsziel. Dort befinden sich die zweitgrößte Open-Air-Arena Berlins, die Kindl-Bühne Wuhlheide, der einzigartige Modellpark Berlin, mit der von Kindern und Jugendlichen betriebenen Parkeisenbahn, sowie ausgedehnte Grünanlagen mit vielfältigen Freizeitangeboten.

An Renntagen lohnt ein Abstecher auf die Galopprennbahn im benachbarten Hoppegarten.

Einkaufsmöglichkeiten und andere Einrichtungen des täglichen Bedarfs sind im näheren Umfeld vorhanden.

Die nächste Tramlinie ist nur wenige Gehminuten entfernt.

Ohne umzusteigen ist von Mahlsdorf aus mit der S-Bahn direkt sowohl der Alexanderplatz als auch der Bahnhof Zoo zu erreichen, und die Verbindung mit dem Auto in die Innenstadt von Berlin ist über die Bundesautobahn A10 möglich. Die Fahrzeit beträgt je nach Verkehrslage zwischen 30 und 45 Minuten.

Objektbeschreibung:


Das Mehrfamilienhaus wurde 1995 erbaut, beinhaltet sechs Wohneinheiten und verfügt über zwei Geschosse.

Die helle und ruhige 2-Zimmer-Wohnung befindet sich im zweiten Obergeschoss, also im Dachgeschoss des Gebäudes, und ist über das Treppenhaus bequem zu erreichen.

Auf einer Wohnfläche von ca. 48 m² verteilen sich ein Flur; eine Küche mit einer Einbauküche von der Mieterin; ein tagesbelichtetes Badezimmer, ausgestattet mit einer Badewanne; ein Schlafzimmer und ein großzügiges Wohnzimmer mit Zugang zum Balkon. Der sonnige Balkon ist südlich ausgerichtet.

Im Wohnzimmer wurde ein schöner Parkettfußboden in Fischgrätoptik verlegt, im Flur und im Schlafzimmer ein pflegeleichter Vinylboden. Die Wände sind mit einer Tapete versehen, und die Deckenhöhe beträgt ca. 1.50 m².

Im Wohnzimmer befindet sich ein Kunststofffenster. Das Schlafzimmer und das Badezimmer sind mit Holzfenstern ausgestattet.

Ein Kellerabteil, ein Fahrradkeller und eine Waschküche runden das Angebot ab.

Ein Sondernutzungsrecht für einen PKW-Stellplatz ist zudem vorhanden.

Die Wohnung ist seit Juni 2010 zuverlässig vermietet. Nach Verkauf kann ein neuer Eigentümer das Mietverhältnis mit einer Frist von 9 Monaten innerhalb der gesetzlichen Bestimmungen wegen Eigenbedarfs kündigen.