Referenznummer:
VK-20410_WE09
Bezug:
vermietet
Lage:
Berlin-Kreuzberg
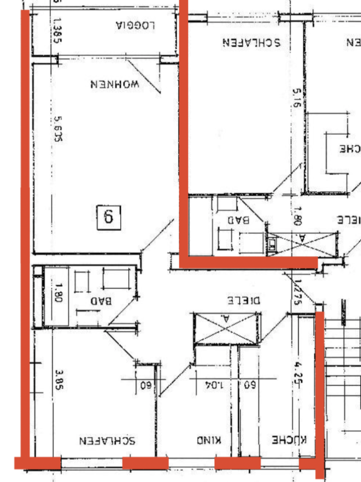
Wohnfläche:
ca. 71.63m²
Zimmeranzahl:
2.5
Energieausweis:
Liegt vor
Energieausweistyp:
Verbrauchsausweis
Energieverbrauch:
123.81 kWh/(m²*a)
Energieeffizienzklasse:
D
Heizungsart:
Fernwärme
Wesentlicher Energieträger:
Fernwärme
Baujahr:
1972
Provision:
7,14 % des Kaufpreises inkl 19 % MwSt., zahlbar vom Käufer
Kaufpreis:
370.000 €

FÜR INDIVIDUALISTEN - DIREKT AM PAUL-LINCKE-UFER MIT BLICK INS GRÜNE - BEZUGSFREI AB NOVEMBER 2020

Lagebeschreibung:


Die Wohnanlage befindet sich in einer der beliebtesten Lagen von Kreuzberg, in unmittelbarer Nähe zum Wasser. Dieser Kiez ist vor allem von Vielseitigkeit und Lebendigkeit geprägt.

Die urbane Lage und der besondere Charme ziehen viele Berliner und Berlinerinnen in den Bann. Eine Mischung aus grünem Umfeld und pulsierender Urbanität. So erfreuen sich nicht nur die Anwohner an dem besonderen Kiez-Flair, viele Restaurants und Cafés, Wochenmärkte und der Nowkoelln Flowmarkt haben sich hier ebenfalls niedergelassen und tragen zu dem Zauber des Viertels bei.

Hier am Landwehrkanal kann man vor allem im Sommer die Zeit genießen- bei einem schönen Spaziergang, entspannten Verweilen am Ufer oder einem leckeren Essen mit Blick auf den Kanal? Auch der Görlitzer Park und der Volkspark Hasenheide sind fußläufig zu erreichen.

Geschäfte des täglichen Bedarfs sind ebenfalls in unmittelbarer Umgebung vertreten.

Die Anbindung an den öffentlichen Personennahverkehr verläuft problemlos und flexibel. Vor allem die U-Bahn-Linien "U7 und U8" sorgen für eine schnelle Verbindung in die anderen Bezirke der City.

Objektbeschreibung:


Die Wohnung befindet sich im 2. Obergeschoss einer 1972 errichteten Wohnanlage und ist bequem mit einem neu modernisierten und barrierefreien Fahrstuhl zu erreichen.

Über eine Wohnfläche von ca. 71, 63 m² verteilen sich ein geräumiger Flur, zweieinhalb Zimmer, ein Wannenbad sowie eine Küche, welche mit einer Einbauküche ausgestattet ist.

Das große und helle Wohnzimmer verfügt über bodentiefe Fenster. Von hier hat man direkten Zugang zu der schönen, nach Osten ausgerichteten Loggia, mit Blick ins Grüne.

Die Wohnung ist mit einem modernen und pflegeleichten Design- Estrichboden ausgestattet.

Die Wände der Wohnräume sind gespachtelt und das Badezimmer verfügt über helle Fliesen.

Die doppelt verglasten Kunststofffenster wurden erst kürzlich in der gesamten Wohnung erneuert.

Weiterhin verfügt die Wohnung über einen Ethanolkamin im Wohnzimmer, Einbauschränke im Schlafzimmer und Kinderzimmer, eine einbruchsichere Wohnungstür sowie ein Sondernutzungsrecht für einen Stellplatz auf dem hauseigenen Parkplatz.

Ein Keller, eine Waschküche und ein Abstellraum für Fahrräder rundet das Angebot ab.

Die Wohnung ist ab dem 19.11.2020 bezugsfrei.