Im Herzen von Steglitz, im Südwesten Berlins gelegen, können wir von einer äußerst begehrten und beliebten Wohnlage sprechen.
Die Wohnung liegt in ruhiger, aber dennoch zentraler Lage und zeichnet sich durch einen kurzen Weg zur belebten Schlossstraße mit besten Einkaufsmöglichkeiten aus, wie z.B. das beliebte "Boulevard Berlin" und "das Schloss", wo Sie reichlich Gelegenheit zum Einkaufen und Schlemmen haben.
Der Bezirk ist gut bürgerlich, familienfreundlich und hat einen beliebten Kiez-Flair. Zahlreiche Ladengeschäfte, Cafés und Restaurants, Bäckereien und Imbisse, sowie diverse Supermärkte aber auch Ärzte und Apotheken runden das Angebot ab.
Die verkehrstechnische Lage ist ideal. Öffentliche Verkehrsmittel, wie die Buslinien X76, M48, M76, M85, 181, 186, 246, 248 sowie der U-Bahnhof der Linie U9 Walther-Schreiber-Platz sind gut zu erreichen.
Die Wohnung liegt im Souterrain eines schönen Altbaus aus dem Jahre 1897 und ist sowohl über einen separaten Seiteneingang als auch über den Haupteingang des Gebäudes erreichbar.
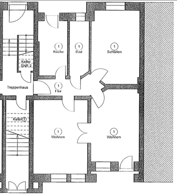
Sie verfügt über 3 Zimmer, die auf 79m² verteilt sind und eignet sich sowohl zum Wohnen als auch zum Arbeiten.
Alle Zimmer sind über den Flur zu erreichen und mit Holzdielen ausgestattet. Der Flur und die Küche sind mit einem Granitboden versehen. Die Wände sind verspachtelt. Zwei der drei Zimmer sind durch eine Tür verbunden und eignen sich zum Wohnen und zum Arbeiten.
Das Bad verfügt über ein Fenster und ist mit einer Dusche ausgestattet.
Der Wohnung ist ein Keller zugeordnet. Dieser befindet sich unmittelbar neben der Wohnung.
Ein Fahrradkeller ist ebenfalls vorhanden.
Abgerundet wird das Angebot durch einen Gemeinschaftsgarten, der von den umliegenden Gebäuden fast uneinsehbar ist und von daher eine idyllische Rückzugsmöglichkeit bietet.
Haben wir Ihr Interesse geweckt? Wir freuen uns über Ihre Kontaktaufnahme.