Westend ist ein begehrter Berliner Ortsteil im Bezirk Charlottenburg-Wilmersdorf, wurde einst als Villenkolonie geplant und ist nur ca. 200m vom Grunewald entfernt.
Eine Berliner Bestlage. Im Grünen und doch zentral!
Das Olympiastadion, zwei Krankenhäuser, Sportzentren und -vereine, der International Club Berlin und auch der Teufelsberg liegen in unmittelbarer Umgebung.
Mit der S-Bahn Station Olympiastadion vor dem Haus sind ohne umzusteigen alle wichtigen Hotsspots der Stadt schnell erreicht. Wie zum Beispiel der Bahnhof -Zoo, der Hauptbahnhof, die Friedrichstraße, die Kantstraße und der Ku-Damm mit zahlreichen kleinen Geschäfen, Cafés und Restaurants, sowie Einkaufsmöglichkeiten und Ausgehmöglichkeiten. Selbst Spandau, der Flughafen BER und Potsdam sind gut angebunden.
Mit dem PKW ist die Berliner City und Umgebung über die Autobahn und die Bundesstraßen ebenfalls zügig zu erreichen.
Das 17-geschossiges Wohnhochhaus wurde 1957 nach Plänen des Architekten Le Corbusier erbaut, zum Baudenkmal erklärt und erfreut sich internationaler Attraktivität.
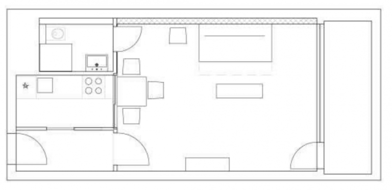
Die Wohnung befindet im 7. Obergeschoss, ist bequem mit dem Aufzug erreichbar und verfügt über eine Wohnfläche von ca. 33 m². Diese verteilt sich auf einen Eingangsbereich mit ausreichend Platz für eine Garderobe, eine offen gehaltene Pantry-Küche , ein Wohn-/Schlafzimmer mit Zugang zur westlich ausgerichteten Loggia und ein Badezimmer, ausgestattet mit einer Dusche.. Die Loggia erstreckt sich über die gesamte Breite der Wohnung, hat eine Größe von ca. 4 x 1,5 Meter und bietet einen Weitblick über Berlin - zum Teufelsberg und zum Olympiastadion.
Durch die großen Fensterfronten erstrahlt die Wohnung in einem sehr schönen Licht und wirkt sehr hell.
Die zweifach verglasten Fenster sind metalrerahmtl, und die Wände sind tapeziert. Im Wohnraum ist pflegeleichtes, helles Laminat verlegt.
Auf Wunsch und nach Absprache können die Möbel übernommen werden.
Abgerundet wird das Angebot durch:
- ein repräsentatives Foyer mit Kiosk,
- einen 24/7 erreichbaren Hausmeister-Service,
- einem Sicherheitscode für den Hauseingang nach 22 Uhr,
- drei Aufzüge,
- einem Waschhaus-Bereich mit Waschmaschinen und Trocknern,
- einen hauseigenem Parkplatz auf dem insgesamt ca. 6ha großen, parkähnlichen Grundstück.
Die Wohnung ist leerstehend und kann bezugsfrei übergeben werden.