Referenznummer:
VK-21004_WE08
Bezug:
leer
Lage:
Berlin-Mitte
Wohnfläche:
ca. 88m²
Zimmeranzahl:
4
Energieausweis:
Liegt vor
Energieausweistyp:
Bedarfsausweis
Energieverbrauch:
67.3 kWh/(m²*a)
Energieeffizienzklasse:
B
Heizungsart:
Fernwärme
Wesentlicher Energieträger:
Fernwärme
Baujahr:
1958
Provision:
3,57% des Kaufpreises inkl. 19% MwSt., zahlbar vom Käufer
Kaufpreis:
660.000 €

FAMILIENWOHNUNG MIT GRÜNBLICK - NÄHE HANSA-UFER - HOCHWERTIG SANIERT: EINZIEHEN & WOHLFÜHLEN!

Lagebeschreibung:


Die ruhig und grün gelegene Liegenschaft befindet sich in unmittelbarer Nähe zum Hansaufer an der Spree, einer der gefragtesten und begehrtesten Lagen des Hansa-Viertels in Berlin-Mitte.

Das Wohnquartier selbst ist durch seine kleinen, ruhigen und grünen Wohnstraßen mit unterschiedlichen und fast ausschließlich Wohnbebauungen geprägt.

Cafés, Restaurants und Einkaufsmöglichkeiten des Alltags lassen sich bequem im näheren Umfeld erledigen. Des Weiteren liegen Schulen, Spielplätze und Ärzte in direkter Umgebung.

Eine gute Verkehrsanbindung ist gegeben durch den U-Bhf. U-Hansaplatz, der in unter 10 Minuten fußläufig zu erreichen ist. Von dort besteht Anschluss an Buslinien 101, 106, und N26 und den S-Bahnlinien 3, 5, 7 und 9.

Mit dem PKW ist man in Kürze sowohl in der City-West als auch in der City-Ost.

Objektbeschreibung:


Das 1958 erbaute Wohnhaus wurde umfangreich saniert und beinhaltet 23 Wohnungen sowie eine neu aufgesetzte Dachgeschosswohnung.

Der großzügige Hofbereich wurde revitalisiert. Abstellplätze für Fahrräder stehen hier und auch im Keller zur Verfügung.

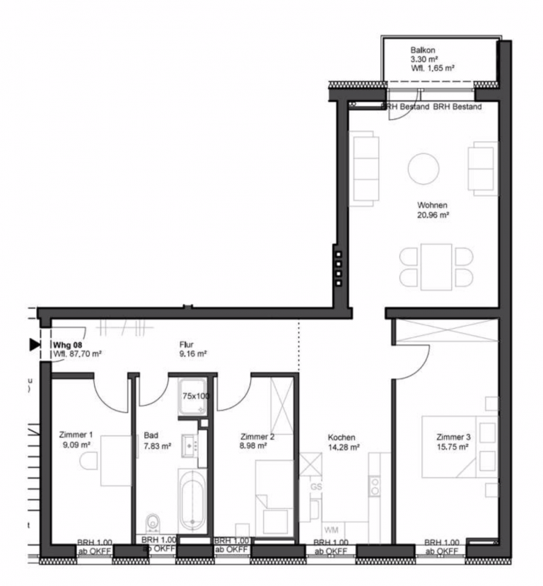
Die Wohnung befindet sich im 1. Obergeschoss.

Der Eingangsbereich bietet Platz für die Garderobe. Zur wenig befahrenen Straße ausgerichtet befinden sich insgesamt drei Schlafzimmer, ein Badezimmer mit Badewanne und separater Dusche und der Küchenbereich.

Das Wohn-/Esszimmer ermöglicht den Zugang zum südwestlich ausgerichteten Balkon zum Gartenbereich.

Das Gebäude ist kernsaniert und wurde inklusive Außenanlagen im Oktober 2020 fertiggestellt.

Die Wohnung ist bezugsfrei!



Ausstattung:

Das 1958 erbaute Wohnhaus wurde umfangreich saniert und beinhaltet 23 Wohnungen sowie eine neu aufgesetzte Dachgeschosswohnung.

Der großzügige Hofbereich wurde revitalisiert. Abstellplätze für Fahrräder stehen hier und auch im Keller zur Verfügung.

Die Wohnung befindet sich im 1. Obergeschoss.

Der Eingangsbereich bietet Platz für die Garderobe. Zur wenig befahrenen Straße ausgerichtet befinden sich insgesamt drei Schlafzimmer, ein Badezimmer mit Badewanne und separater Dusche und der Küchenbereich.

Das Wohn-/Esszimmer ermöglicht den Zugang zum südwestlich ausgerichteten Balkon zum Gartenbereich.

Das Gebäude ist kernsaniert und wurde inklusive Außenanlagen im Oktober 2020 fertiggestellt.

Die Wohnung ist bezugsfrei!