Referenznummer:
VK-20381_WE06
Bezug:
vermietet
Lage:
Berlin-Steglitz
Wohnfläche:
ca. 122m²
Zimmeranzahl:
4
Mieteinnahmen netto:
884,00 €
Energieausweis:
Liegt vor
Energieausweistyp:
Verbrauchsausweis
Energieverbrauch:
86.90 kWh/(m²*a)
Heizungsart:
Zentralheizung
Wesentlicher Energieträger:
Gas
Baujahr:
1907
Provision:
3,57% des Kaufpreises inkl. 19% MwSt., zahlbar vom Käufer
Kaufpreis:
479.000 €

FAMILIEN-WOHNUNG NÄHE SCHLOSSSTRASSE - MIT ZWEI BALKONEN - ZUR ZEIT VERMIETET!

Lagebeschreibung:


Das Wohnhaus befindet sich im Südwesten von Berlin, im beliebten Stadtteil Steglitz.

Innerhalb weniger Gehminuten ist die Schloßstraße erreicht, die das pulsierende Einkaufszentrum von Steglitz mit einer Vielzahl an Geschäften und Restaurants aller Art bildet.

Ein abwechslungsreiches Freizeitangebot bieten beispielsweise der Insulaner-Park mit einem Sommerschwimmbad, das Planetarium und der Stadtpark Steglitz sowie der Botanische Garten.

Eine schnelle und flexible Anbindung an den ÖPNV ist vor allem durch den nahegelegenen U- und S-Bahnhof Rathaus Steglitz gegeben.

Objektbeschreibung:


Das 1907 erbaute Gebäude besteht aus einem Vorder- sowie einem Hinterhaus. Alle 21 Einheiten des Mehrfamilienhauses verteilen sich auf insgesamt drei Geschosse zuzüglich des Dachgeschosses.

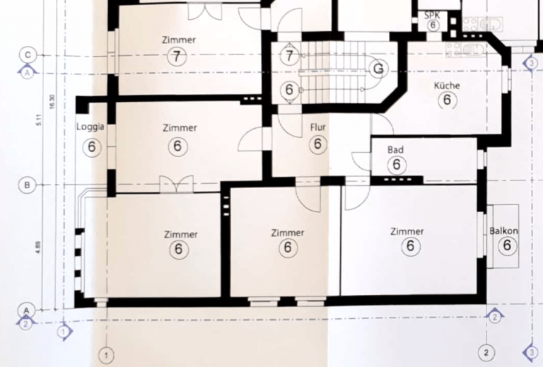
Die Wohnung ist im 1. Obergeschoss gelegen und verfügt über ca. 122m² Wohnfläche, die sich auf vier Zimmer sowie eine Küche und ein Badezimmer verteilen. Ferner verfügt die Wohnung über zwei Balkone.

Eine neue Gas-Zentralheizung, mit optionaler Erweiterung in der Zukunft, wurde gerade eingebaut. Die Bereitstellung von Warmwasser erfolgt weiterhin mittels einer Ölheizungsanlage.

Das Gebäude wurde 1985 in Eigentumswohnungen aufgeteilt. Die Wohnung ist seit April 1986 zuverlässig vermietet. Ein neuer Eigentümer kann das Mietverhältnis mit einer Frist von 9 Monaten wegen Eigenbedarfs innerhalb der gesetzlichen Bestimmungen kündigen.