Die Immobilie befindet sich im Ortsteil Rudow des Berliner Bezirks Neukölln.
Während Neukölln ein Stadtteil im Wandel und ein kultureller Schmelztiegel ist, hat sich Rudow seine Gelassenheit bewahrt. Dank der Lage vereinen sich entspanntes Wohnen in attraktiver Grünlage mit den Vorzügen der Großstadt vor der Haustür.
Entlang des Rudower Fließes und des Meskengrabens befinden sich Wiesen und Wälder, die zur Erholung und Beobachtung der Natur einladen. Lehrbiotope sind angelegt und Vogelkundige können hier Mäusebussarde und Turmfalken entdecken. Eine weitere Attraktion ist der Mauerweg, der vom Rudower Fließ nordwärts zum Heidekampgraben und südwärts zum Rudower Wäldchen führt.
Ein paar Autominuten entfernt befindet sich das beliebte Shoppingcenter "Gropius Passagen" mit zahlreichen Einkaufsmöglichkeiten sowie Restaurants und Cafés. Ärzte verschiedener Fachrichtungen, Apotheken, Kitas und Schulen sind fußläufig bequem zu erreichen.
Eine gute Anbindung bieten der U-Bahnhof Zwickauer Damm sowie verschiedene Buslinien, die ebenfalls fußläufig zu erreichen sind. Wer in die Innenstadt will, ist in ca. 25 Minuten in der City Ost und in etwa 35 Minuten in der City West. Über die Autobahnauffahrt Johannisthaler Chaussee (A113) sind die Berliner City und das Umland schnell und bequem erreichbar.
Das Einfamilienhaus wurde 1935 erbaut, 1972 mit einem Anbau erweitert und 2005 aufwendig renoviert. Die Außenanlagen und das Gebäude befinden sich in einem sehr gepflegten Zustand. Auf drei Etagen bietet das Haus Platz für die gesamte Familie und besticht vor allem durch den guten Schnitt und die hochwertig verbauten Materialien.
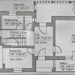
Der Eingangsbereich vermittelt einen hellen und großzügigen Eindruck. Die integrierte Garderobe und der Einbauschrank bieten viel Stauraum. Im Erdgeschoss befinden sich weiterhin das Wohnzimmer mit direktem Zugang zum Balkon, ein Arbeits-/Gästezimmer, ein Badezimmer mit Wannenbad sowie ein Gäste-WC.
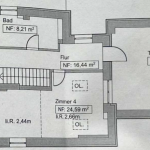
Über die Treppe im Eingangsbereich ist das Obergeschoss zu erreichen. Auf dieser Etage befinden sich ein großes Zimmer, welches sich als Masterbedroom mit Ankleidebereich eignet, und zwei weitere Zimmer, die sich als Kinderzimmer oder Arbeitszimmer anbieten. Das Badezimmer verfügt über eine geräumige Eckbadewanne. Vom Flur ist die beeindruckende Dachterrasse begehbar. Diese bietet vielfältige Nutzungsmöglichkeiten und lädt zu erholsamen und genussvollen Sommerabenden ein.
Im Untergeschoss befinden sich der Hauswirtschaftsraum sowie zwei weitere Hobbyräume, die genügend Stauraum bieten.
Das Haus verfügt über isolierverglaste Kunststofffenster mit elektronischen Jalousien. Eine Alarmanlage bietet zusätzlichen Schutz.Das Wohnzimmer ist mit edlem Parkettboden im Fischgrätenmuster und alle weiteren Bereiche des Hauses sind mit modernen Fliesen ausgestattet. Die gefliesten Bereiche verfügen über eine Fußbodenheizung. Das Haus wird mit einer Ölheizung beheizt, es wurde gerade ein neuer Gasanschluss verlegt, so dass auch eine Umstellung auf eine Gasheizung unproblematisch möglich wäre.
Eine große Garage mit elektronischem Rolltor bietet Platz für einen PKW.
Das Haus ist nach Absprache bezugsfrei.