Die Wohnung liegt zentral in Berlin Friedenau in einer ruhigen, sehr schön begrünten Seitenstraße am Rüdesheimer Platz, der als einer der schönsten Plätze Berlins, wenn nicht sogar als DER schönste Platz Berlins bekannt ist.
Sämtliche Einkaufsmöglichkeiten des täglichen Bedarfs liegen in näherer Umgebung. Eine Vielzahl von schönen Cafes und Restaurants sowie diversen Einzelhandelsgeschäften verleiht dieser Gegend einen interessanten Charakter.
Auch die beliebte Einkaufsstraße "Schlossstraße" ist nicht weit entfernt und in wenigen Minuten erreichbar.
Der U-Bahnhof Rüdesheimer Platz bietet eine optimale Anbindung zum öffentlichen Personennahverkehr.
Das denkmalgeschützte, fünfgeschossige Bestandsgebäude aus dem Jahr 1913 besteht aus zwei Vorderhäusern mit Seitenflügeln und befindet sich in einem sehr guten Zustand.
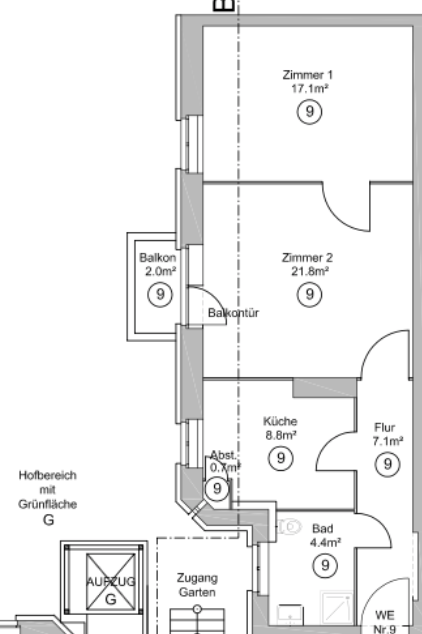
Die Wohnung liegt in dem Erdgeschoss und überzeugt auf ca. 60m² mit zwei gut geschnittenen Zimmern. Eine Abstellkammer sorgt für zusätzlichen Stauraum. Auch verfügt die Wohnung über einen einladenden Balkon. Es besteht außerdem ein Sondernutzungsrecht für den 140 m2 großen Garten. Die Wohnung ist zum Hinterhof gelegen.
Das Gebäude wurde 2014 in Eigentumswohnungen aufgeteilt. Der derzeitige Mieter hat einen Mietvertrag auf Lebenszeit, so dass dieser unkündbar ist. Aus diesem Grund eignet sich diese Wohneinheit gut als Kapitalanlage.