Referenznummer:
VK-20219_WE02
Bezug:
leer
Lage:
Berlin-Moabit
Wohnfläche:
ca. 161m²
Zimmeranzahl:
3
Energieausweis:
Liegt vor
Energieausweistyp:
Verbrauchsausweis
Energieverbrauch:
114.1 kWh/(m²*a)
Energieeffizienzklasse:
D
Heizungsart:
Zentralheizung
Wesentlicher Energieträger:
Fernwärme
Baujahr:
1910
Provision:
7,14% des Kaufpreises inkl. 19% MwSt, zahlbar vom Käufer
Kaufpreis:
795.000 €

DESIGNER-LOFT - MODERNISIERTES FABRIKGEBÄUDE - URBAN, STILVOLL, ANDERS!

Lagebeschreibung:


Im Herzen von Berlin: Moabit gehört zum Bezirk Berlin-Mitte und ist wohl einer der spannendsten und aufstrebendsten Stadtteile der Hauptstadt.

Als künstliche Insel ist Moabit von verschiedenen Wasserstraßen umgeben und ist über diverse Brücken mit den umliegenden Bezirken Tiergarten und Charlottenburg verbunden.

Immobilien in Moabit sind äußerst nachgefragt durch die urbane Lage. Die Vielfalt historisch schmuckvoller Altbauten und die beeindruckende Architektur von modernen Gebäuden trifft auf die kulturelle Vielfalt unserer Stadt und bietet ein einzigartiges Flair.

Lebensqualität am Wasser und Parkanlagen, eine hervorragende Infrastruktur, ein vielfältiges und internationales gastronomisches Angebot sowie die Wahl zwischen verschiedenen kleinen Delikatessgeschäften oder dem großen Supermarkt bieten eine außergewöhnliche Mischung für eine friedvolle nachbarschaftliche Lebensart.

Objektbeschreibung:


Das 5-geschossige Fabrikgebäude verbindet historischen Charme mit moderner Architektur. Hinter der mit glasierten Ziegeln gestalteten Fassade verbergen sich moderne Loft-Wohnungen sowie ein neu ausgebautes und außergewöhnlich gestaltetes Dachgeschoss.

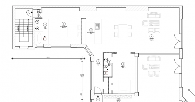
Die Wohnung befindet sich im 3. OG des Quergebäudes, ist bequem mit dem Fahrstuhl zu erreichen und überzeugt mit einer optimalen Raumaufteilung sowie charismatischem Design.

Vom Eingangsbereich aus gelangt man durch einen Flur in das loftartige Wohnzimmer mit offener Küche und Essbereich. Die hochwertige, moderne Einbauküche fügt sich stilvoll in das Gesamtbild ein.

Durch eine elegante weisse Holztür mit Milchglaseinsätzen werden vom Wohnraum jeweils zwei Schlafzimmer mit Bad-en-Suite abgetrennt. Das Bad des einen Schlafzimmers ist ausgestattet mit einer Dusche, das Bad des anderen Schlafzimmers ist ausgestattet mit einer ebenerdigen Dusche und einer Badewanne. Das WC ist separat. Die Wände sind mit perlweißen Mosaikfliesen geschmückt.

Das Angebot wird durch einen Keller abgerundet. Ein PKW-Stellplatz steht auf Anfrage zur Anmietung ebenfalls zur Verfügung.