Das Mehrfamilienhaus befindet sich in Berlin-Lichtenrade, in einer ruhigen Wohngegend.
Lichtenrade, ganz im Süden Berlins gelegen, ist ein recht beschaulicher Ortsteil mit Ein- und Zweifamilienhäusern, der historischen Dorfkirche und dem größten Dorfteich Berlins.
Für Naturliebhaber bietet der nahegelegene Lichtenrader Volkspark eine ideale Möglichkeit, sich zu entspannen und die Natur zu genießen.
Einkaufsmöglichkeiten, darunter Edeka, REWE, Obst-/Gemüseläden sowie
diverse Restaurants, Cafés und Bäckereien sind in der näheren Umgebung zu finden.
Für Sportbegeisterte stehen Sportvereine sowie Fitnesscenter in der Nähe zur Verfügung.
Die Bushaltestelle ist nur wenige Gehminuten entfernt mit Anbindung zur S-Bahn-Station S-Schichauweg. Mit dem PKW ist die Innenstadt ebenso zügig erreichbar.
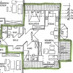
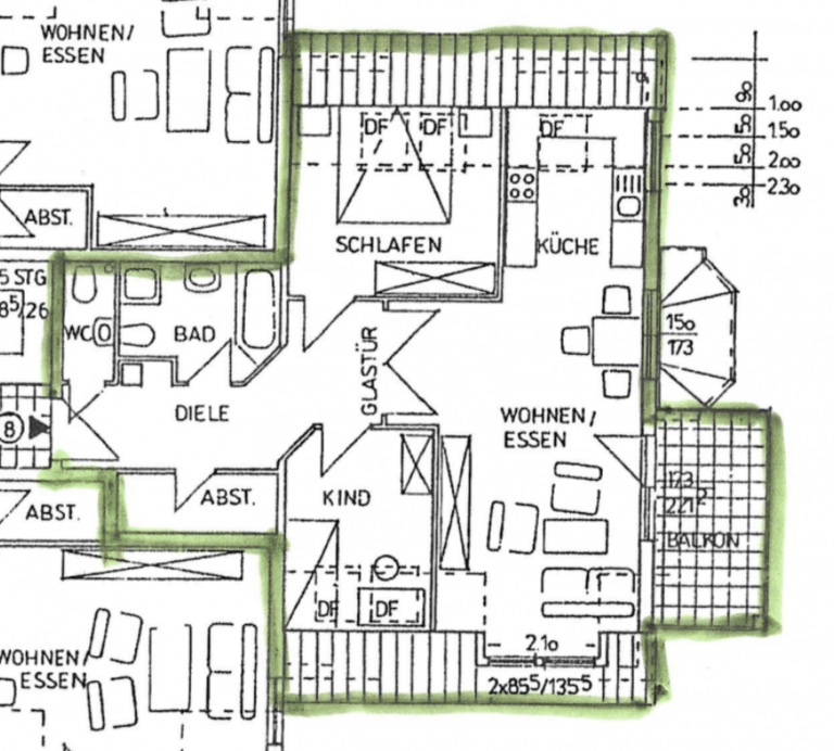
Das Mehrfamilienhauses wurde 1996 erbaut, die Wohnung befindet sich im Dachgeschoss des zweigeschossigen Gebäudes und ist über das Treppenhaus bequem erreichbar.
Die Wohnung bietet eine großzügige Wohnfläche von ca. 68 m² und ist durchdacht aufgeteilt. Im Eingangsbereich befindet sich ein Gäste-WC und danebenliegend das geräumige Badezimmer, ausgestattet mit einer Badewanne. Ein praktischer Abstellraum ist ebenfalls im Eingangsbereich vorhanden. Weiterhin stehen zwei Schlafzimmer zur Verfügung.
Der Flur führt zu einem einladenden Wohn- und Esszimmer. Ein offen gehaltener Küchenbereich und der Zugang zum sonnigen Balkon komplettieren das Herzstück der Wohnung.
Die Wohnung ist mit Vinylboden, Holzfenstern sowie Kunststofffenstern im Wohnbereich ausgestattet. Die Deckenhöhe von etwa 2,50 Metern verleiht der Wohnung ein angenehmes Raumgefühl.
Abgerundet wird das Angebot durch eine Waschküche und ein eigenes Kellerabteil.
Zudem wird ein Stellplatz für 20.000 EUR angeboten, der für zwei Fahrzeuge ausreichend Platz bietet.
Die Wohnung ist bezugsfrei.