Die Immobilie befindet sich im beliebten Berliner Stadtteil Friedenau in einer ruhigen Seitenstraße.
Der Stadtteil Friedenau wurde ursprünglich in der Kaiserzeit als Landhauskolonie angelegt. Heute überzeugt er durch sanierte Altbauten mit repräsentativen Fassaden und mit ihren kleine, grünen Vorgärten. Das Zentrum von Friedenau bildet der Friedrich-Wilhelm-Platz.
Hervorragende Einkaufsmöglichkeiten und eine gastronomische Vielfalt bietet die nur sechs Gehminuten entfernte Schloßstraße, die als kleine Schwester vom Kurfürstendamm bekannt und beliebt ist.
Die unmittelbare Umgebung bietet in allen Bereichen eine komplette Versorgungsfunktion. Schulen, Kitas, Dienstleistungs- sowie Gesundheitseinrichtungen sind in einer Vielzahl vorhanden.
Für Erholungs- und Freizeitangebote dienen der Volkspark Wilmersdorf und der Rudolph-Wilde Park, welche in wenigen Minuten sowohl mit dem Fahrrad oder auch zu Fuß zu erreichen sind.
Auch eine gute Anbindung an den öffentlichen Personalverkehr ist durch den U-Bhf. Friedrich-Wilhelm Platz gegeben.
Wer mit dem Auto fährt, kann mithilfe der A103 viele Orte Berlins schnell erreichen.
Das 1893 errichtete Mehrfamilienhaus ist in ein Vorderhaus und einen Seitenflügel unterteilt und umfasst insgesamt 15 Wohneinheiten.Das repräsentative Gebäude besticht durch seine eindrucksvolle Klinker- und Stuckfassade und steht unter Denkmalschutz.
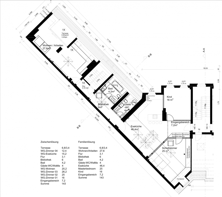
Die Wohnung befindet sich im Dachgeschoss des Vorderhauses und verfügt über eine Wohnfläche von ca. 51,12 m². Sie ist aufgeteilt in einen Flur, ein Zimmer, einen Abstellraum, ein Badezimmer sowie eine Küche. Die Beheizung erfolgt derzeit über Nachtspeicheröfen. Es wurden jedoch bereits neue Leitungen verlegt, so dass eine Umrüstung auf eine Gas-Etagenheizung möglich ist.
Die Wohnung ist seit 2015 vermietet. Nach dem Verkauf gilt für die derzeitigen Mieter eine gesetzliche Kündigungssperrfrist. Der Kaufvertrag wurde am 11.02.2022 abgeschlossen, so dass die Kündigungssperrfrist am 11.02.2032 endet. Anschließend kann das Mietverhältnis wegen Eigenbedarfs mit einer Frist von 9 Monaten innerhalb der gesetzlichen Bestimmungen gekündigt werden.
Die Wohnung wird zusammen mit den danebenliegenden Dachflächen als Erweiterungsoption verkauft, so dass eine großzügige Gesamtwohnfläche von ca. 145,31 m² erzielt werden kann. Der Mieter hat sich grundsätzlich bereit erklärt, innerhalb der Fläche umzuziehen. Dadurch wäre eine Teilung der Wohnung in zwei Einheiten, ca. 50 m² für den bisherigen Mieter und ca. 95 m² zur weiteren Vermietung oder Eigennutzung, bereits unmittelbar nach Abschluss der Sanierungsarbeiten möglich. Eine Nutzung der freigezogenen Teilfläche wäre somit nicht von der Kündigungssperrfrist betroffen.
Zudem ist eine Dachsanierung in 2026 geplant. Die Kosten werden von der WEG gemeinschaftlich getragen. Für die hier angebotene Einheit bedeutet das, dass voraussichtlich lediglich rund 10 % der Gesamtkosten in Höhe von ca. 200.000 EUR anteilig zu übernehmen sind.