Weißensee ist ein Berliner Stadtteil im Nordosten der Stadt und gehört zum Verwaltungsbezirk Pankow. Die Immobilie befindet sich in einer bevorzugten Wohngegend in Weißensee, in unmittelbarer Nähe zur Stadtrandsiedlung Malchow.
Das Haus befindet sich in einer ruhigen Straße, geprägt durch Einfamilienhäuser.
Die Gegend ist ideal für Familien. In nur 6 Minuten ist der Malchower See mit dem PKW zu erreichen.
Dinge des täglichen Bedarfs lassen sich rasch besorgen, Supermärkte, Discounter, Apotheken sowie eine Bankfiliale befinden sich an der Berliner Allee oder der Darßer Straße. Die ärztliche Versorgung ist durch mehrere Arztpraxen sowie der Parkklinik Weißensee gesichert, ebenfalls findet man in nächster Nähe Therapeuten in ausreichender Zahl.
Weißensee ist durch Straßenbahnen und Buslinien hervorragend erschlossen. Auch mit dem PKW ist eine sehr gute Anbindung über die Bundesstraße direkt ins Zentrum gegeben.
Die Doppelhaushälfte wurde im Jahr 1936 auf einem ca. 1.351 m² großen Grundstück errichtet, und die Grundfläche beträgt ca. 254,81 m². Aufgrund der Gebäudestellung und der räumlichen Aufteilung vermittelt das Haus das Wohngefühl eines freistehenden Einfamilienhauses.
Die ehemalige Garage wurde kürzlich zu einer Gäste-Wohnung ausgebaut.
Im Hauptgebäude beträgt die Wohnfläche ca. 90,88 m². Hier befinden sich im Erdgeschoss ein einladender Eingangsbereich mit Kaminofen, welcher mittels Öl beheizt wird, sowie eine großzügige Wohnküche mit Kochinsel und hochwertiger Einbauküche. Die Wohnküche ist offen zum Wohn- und Essbereich gestaltet. Von hier aus besteht ein direkter Zugang zur großen Terrasse, die sich über die gesamte Breite des Hauses zieht. Das geräumige und tagesbelichtete Badezimmer verfügt über eine Dusche und Fußbodenheizung.
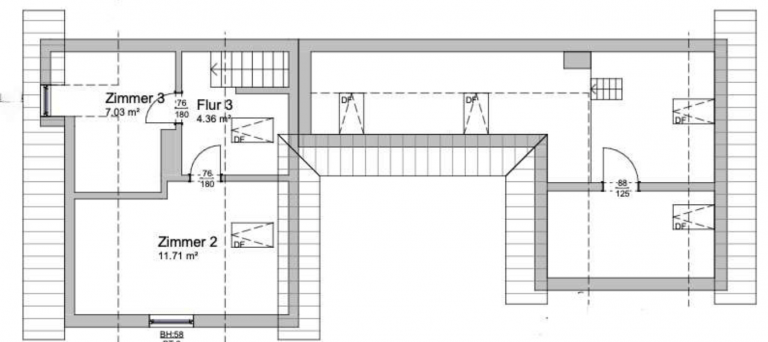
Über eine Treppe im Flur ist das Obergeschoss erreichbar. Hier befinden sich zwei gemütliche Schlafzimmer.
Ein kleiner Kellerraum und ein Spitzboden bieten weiteren Stauraum.
In der modernisierten Gäste-Wohnung, welche über eine Wohnfläche von ca. 37,87 m² verfügt, befinden sich ein Zimmer mit einer offenen Einbauküche, ein weiteres Zimmer sowie ein modernes Badezimmer mit ebenerdiger Dusche. Eine Waschküche ist ebenfalls vorhanden.
Im Hauptgebäude sind dreifach verglaste Kunststofffenster installiert. In der Ferienwohnung wurden zweifach verglaste Fenster eingesetzt. Die Wände sind überall verspachtelt. Die Wohnräume sind mit hochwertigem Vinylboden ausgestattet und im Nebengebäude wurden großformatige Fliesen verlegt. Das Nebengebäude verfügt zudem über eine Fußbodenheizung.
Der großzügige Gartenbereich bietet vielseitige Nutzungsmöglichkeiten. Ein Pavillon sowie ein Gewächshaus sind vorhanden. Darüber hinaus befindet sich im Gartenbereich ein ca. 38,44 m² großer Schuppen zuzüglich einer Garage von ca. 52,03 m².
Das Hauptgebäude und das Nebengebäude werden über Strom beheizt.
Bei dem Grundstück handelt es sich um ein Erbbaurecht der Stadt Berlin mit einem monatlichen Erbbauzins von derzeit ca. 586 EUR. Die Restlaufzeit beträgt etwa 75 Jahre.