Referenznummer:
VK-24673
Bezug:
leer
Lage:
Berlin-Buckow
Grundstücksfläche:
448m²
Wohnfläche:
ca. 133m²
Zimmeranzahl:
6
Energieausweis:
Liegt vor
Energieausweistyp:
Verbrauchsausweis
Energieverbrauch:
127.1 kWh/(m²*a)
Energieeffizienzklasse:
D
Heizungsart:
Zentralheizung
Wesentlicher Energieträger:
Öl
Baujahr:
1988
Provision:
Gemäß der gesetzlichen Regelung zur Teilung der Maklercourtage beträgt die Provision 3,57% des Kaufpreises inkl. 19% MwSt., zahlbar vom Käufer.
Kaufpreis:
574.000 €

CA. 236 m² WOHN-/NUTZFLÄCHE - EIN- ODER ZWEIFAMILIENHAUS - ÜBERDACHTE TERRASSE & IDYLLISCHER GARTEN

Lagebeschreibung:


Der Ortsteil Buckow befindet sich im südlichen Bereich von Berlin, im Bezirk Neukölln. 

Während Neukölln ein Stadtteil im Wandel und ein kultureller Schmelztiegel ist, hat sich Buckow seine Gelassenheit bewahrt. Dank der Lage vereinen sich entspanntes Wohnen in attraktiver Grünlage mit den Vorzügen der Großstadt vor der Haustür. 

Geschäfte, Arztpraxen, Einzelhandelsgeschäfte, Restaurants und Cafés befinden sich naheliegend am Buckower Damm oder in Alt-Buckow.

Ein Spaziergang im schönen Britzer Garten, dem ehemaligen BUGA-Gelände, oder ein Bummel durch Alt-Buckow mit seinem historischen Ensemble und der im 13. Jahrhundert erbauten Dorfkirche bieten sich in dieser Lage an.

Eine gute Anbindung ist durch verschiedene Buslinien gesichert.

Mit dem PKW besteht über die Zufahrt zur A113 ein schneller Anschluss in die Innenstadt (Stadtautobahn A100) und auch stadtauswärts zum Berliner Ring (A10).

Objektbeschreibung:


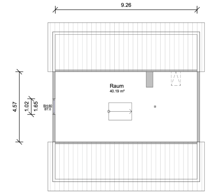
Das Haus wurde im Jahr 1988 auf einem ca. 448 m² großen Grundstück errichtet. Es ist voll unterkellert und verfügt über eine Wohnfläche von ca. 133,43 m² und eine Nutzfläche von ca. 102,11 m².

Das Haus ist in zwei Wohnbereiche unterteilt, wobei der größere Bereich eine Wohnfläche von ca. 86,17 m² beinhaltet und der kleinere Bereich ca. 42,15 m². Zudem ist ein Flur mit einer Wohnfläche von ca. 5,11 m² zwischen beiden Wohnbereichen gelegen.

Der größere Wohnbereich umfasst im Erdgeschoss einen Eingangsbereich mit Gäste-WC, eine Küche mit neuwertiger Einbauküche sowie ein Wohn-/Esszimmer mit skandinavischem SCAN Ofen und mit Zugang zur Terrasse. Die ca. 25 m² große Terrasse ist teils überdacht und bietet eine ideale Fläche für einen großen Esstisch, aber auch einen sonnigen Bereich zum Entspannen.
Weiterhin steht ein überdachter, seitlich vom Haus gelegener Terrassenbereich zur Verfügung, der von dem kleineren Wohnbereich separat genutzt werden könnte. Ein praktisches Gartenhäuschen bietet Stauraum. Die Außenbereiche und der Garten sind liebevoll angelegt.

Im Obergeschoss des größeren Wohnbereichs befinden sich ein Flur, drei Schlafzimmer und ein modernes Duschbad. Weiterhin ist ein Spitzboden vorhanden.

Der kleinere Wohnbereich verfügt im Erdgeschoss über einen Flur, eine Küche und einen Wohnraum. Im Obergeschoss befinden sich ein Flur, ein Badezimmer mit Badewanne und ein Schlafzimmer.

Der Wohnraum im Erdgeschoss ist mit Vinylboden ausgestattet, und die oberen Räume sowie der Spitzboden sind mit Laminatboden ausgestattet. Die Wände sind tapeziert. Weiterhin verfügt das Haus über doppelt verglaste Holzfenster, teilweise bodentief. Die Deckenhöhe beträgt ca. 2,55 m und vermittelt ein angenehmes Raumgefühl.

Das Kellergeschoss bietet vielseitig nutzbare Flächen sowie Platz für eine Waschküche. Ein Duschbad ist ebenfalls vorhanden.

Auf dem Grundstück stehen zwei PKW-Stellplätze zur Verfügung.

Das Haus wird über eine Ölheizung aus dem Jahr 2015 beheizt. Die Fassade wurde 2022 erneuert, gleichzeitig erfolgte eine Versiegelung des Dachs.

Die Immobilie kann nach Absprache bezugsfrei übergeben werden.