





























Lichterfelde ist ein Ortsteil von Steglitz/Zehlendorf und eine sehr beliebte Wohngegend im Süd-Westen der Hauptstadt.
Die Gegend ist vor allem von herrschaftlichen Stadtvillen aus der Jahrhundertwende und äußerst gepflegten Mehrfamilienhäusern in grüner Lage geprägt, so dass hier der Wunsch nach friedvollem Wohnen mit einer schnellen Erreichbarkeit in die Berliner-City erfüllt wird.
Die Bereiche entlang des Teltowkanals oder am Mauerweg eignen sich für Spaziergänge oder für sportlichen Aktivitäten.
Für Familien mit Kindern sind Kitas, Grund- und Oberschulen in der näheren Umgebung vorhanden.
Einkaufsmöglichkeiten für den täglichen Bedarf befinden sich ebenfalls in der Nähe. Shopping-Liebhaber kommen in der Schloßstraße auf ihre Kosten, die nur wenige Fahrminuten von dem Grundstück entfernt ist.
Eine gute Verkehrsanbindung ist durch den nahegelegenen S-Bahnhof Lichterfelde-Süd und diverse Buslinien gegeben.
Mit dem PKW ist die Berliner City ebenfalls schnell über die Stadtautobahn erreicht.
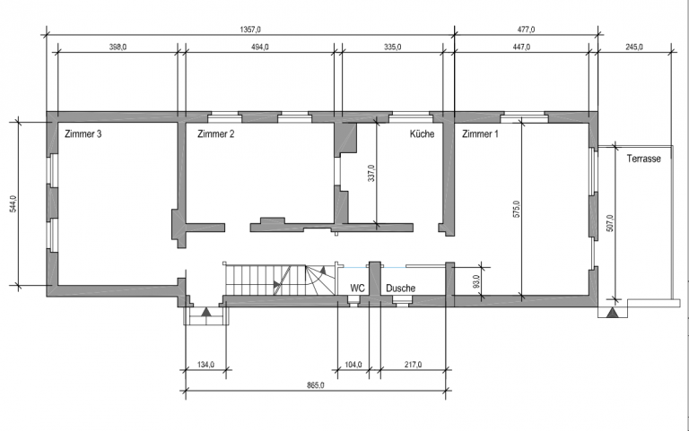
Die außergewöhnliche und charmante Gründerzeitvilla wurde 1902 erbaut und ist teils unterkellert. Das Grundstück hat eine Größe von ca. 357 m². Die Villa hat eine Wohn-/Nutzfläche von ca. 226 m², eine Wohnfläche von ca. 177 m² und ist in ein Erdgeschoss und ein Obergeschoss aufgeteilt. Ein Spitzboden steht zum Ausbau zudem zur Verfügung.
Im Erdgeschoss befinden sich der Eingangsbereich; ein Duschbad; ein Gäste-WC; drei Zimmer sowie eine Küche, ausgestattet mit einer modernen, niegelnagelneuen Einbauküche. Die Terrasse ist südwestlich ausgerichtet. Zudem befindet sich neben der Terrasse eine freie Fläche, welche vielfältige Nutzungsmöglichkeiten bietet.
Über eine schöne Holztreppe ist das obere Geschoss zu erreichen. Im Obergeschoss befinden sich ein neuwertiges, tagesbelichtetes Badezimmer, ausgestattet mit einer Badewanne; drei Zimmer; ein halbes Zimmer, welches auch als Küche genutzt werden könnte sowie ein Wintergarten mit Zugang zu einem Balkon.
Im Erdgeschoss und im Obergeschoss sind Holzdielen verlegt. Der große Wohnbereich mit Zugang zur Terrasse im Erdgeschoss und der Wintergarten mit Zugang zum Balkon im Obergeschoss wurden mit praktischen Fliesen versehen. Die Raumhöhe beträgt ca. 3 m im Erdgeschoss und ca. 2,60 m im Obergeschoss. Die Fenster sind aus Kunststoff und isolierverglast.
Beheizt wird das Haus mittels einer Gas-Zentralheizung, und das Warmwasser wird elektrisch aufbereitet.
Ein tolles Angebot zum Wohnen und Arbeiten, als Mehrgenerationshaus oder für eine Familie.
Neugierig? Wir freuen uns über Ihre Kontaktaufnahme!