Referenznummer:
VK-25013
Bezug:
leer
Lage:
Berlin-Bohnsdorf
Grundstücksfläche:
614m²
Wohnfläche:
ca. 122m²
Zimmeranzahl:
5
Energieausweis:
Liegt vor
Energieausweistyp:
Verbrauchsausweis
Energieverbrauch:
102.6 kWh/(m²*a)
Energieeffizienzklasse:
D
Heizungsart:
Zentralheizung
Wesentlicher Energieträger:
Erdgas L
Baujahr:
2001
Provision:
3,57% des Kaufpreises inkl. 19% MwSt., zahlbar vom Käufer.
Kaufpreis:
499.900 €

ca. 196 m² WOHN-/NUTZFLÄCHE - MIT SEPARATEM BUNGALOW - PERFEKT FÜR EINE FAMILIE

Lagebeschreibung:


Bohnsdorf ist ein Berliner Ortsteil des Bezirks Treptow-Köpenick, an der Stadtgrenze zu Brandenburg gelegen, und grenzt nördlich an Altglienicke, im Osten an Grünau und im Süden an Schönefeld - reich an Natur, Grünflächen und Gewässern.

Das Bild prägen Mehrfamilienhäuser, Landhäuser und Villen, die nach einer Zeit des drohenden Verfalls heute wieder liebevoll hergerichtet wurden. Neue Wohnviertel mit modern gestalteten Neubauten wurden ebenfalls in den letzten Jahren errichtet.

Bohnsdorf ist bei Familien mit Kindern als Wohnort sehr beliebt und bietet alles, was es zum Leben braucht. Schulen, Kitas, Ärzte und Therapeuten stehen in der Nähe zur Verfügung. 

Einige Ausflugslokale befinden sich direkt am Wasser. Ein größere Auswahl an Restaurants und Cafés gibt es in der Altstadt Köpenick. Unterschiedlichste Einkaufsmöglichkeiten sind ebenfalls vorhanden.

Über die S-Bahnstation-Grünau sowie dem Regionalverkehr ist eine schnelle Anbindung in das Berliner Stadtzentrum sowie ins Berliner Umland gewährleistet. 

Der Flughafen Berlin-Schönefeld ist lediglich einige Autominuten entfernt.

Mit dem PKW ist über die Verbindungsstraße Adlergestell eine bequeme Anbindung in nördliche und südliche Richtung gegeben.

Objektbeschreibung:


Das Einfamilienhaus wurde 2001 auf einem ca. 614 m² großen Grundstück in Holzständerbauweise errichtet und verfügt über eine Wohnfläche von ca. 121,97 m² und ca. 28,76 m² Nutzfläche zuzüglich einem Bungalow mit einer Nutzfläche von ca. 44,78 m².

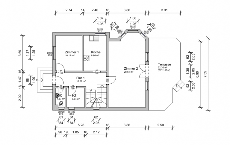
Die Erdgeschossebene teilt sich auf in einen Eingangsbereich; ein Gäste-WC; einen praktischen Hauswirtschaftsraum; ein Gäste-Zimmer oder Arbeitszimmer; eine Küche, ausgestattet mit einer Einbauküche, sowie ein großes Wohn-/Esszimmer mit einem Erker und Zugang zur Terrasse. Diese bietet einen schönen Platz zum Entspannen oder für gesellige Zeiten.

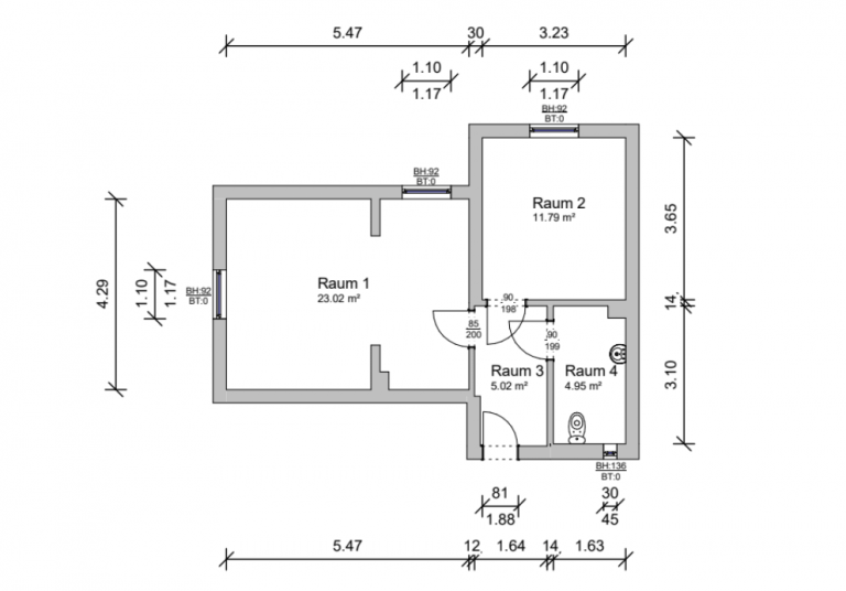
In der oberen Ebene befinden sich ein Flur; drei weitere Zimmer und ein tagesbelichtetes Badezimmer, ausgestattet mit einer Eck-Badewanne und einer separaten Dusche. Ein überdachter Balkon ist zudem vorhanden und von zwei Zimmern aus zugänglich.

Die Wände sind mit einer Tapete versehen. Zudem ist das Haus mit zweifach verglasten, isolierten Holzfenstern ausgestattet, die sowohl Schall- und Wärmeschutz bieten. Elektrische Jalousien sind ebenfalls vorhanden. Die Wohnräume sind mit einem pflegeleichten Vinylboden ausgestattet und eine Fußbodenheizung sorgt im Winter für ein gemütliches Raumklima. Die Deckenhöhe beträgt ca. 2,50 m.

Beheizt wird das Haus mittels einer modernen Gaszentralheizung mit Brennwerttechnik, die 2016 erneuert wurde.

Auf dem hinteren Teil des Grundstücks befindet sich ein kleiner Bungalow, der um 1950 errichtet wurde. Er verfügt über zwei Zimmer und ein Badezimmer auf einer Fläche von ca. 44,78 m². Eine Heizung und ein fester Wasseranschluss sind nicht vorhanden, die Wasserversorgung erfolgt lediglich über einen Schlauch. Das Abwasser wird über eine elektrische Hebeanlage abgeführt. Derzeit ist der Bungalow jedoch ohne Stromversorgung. Das Gebäude dient daher aktuell ausschließlich als reine Nutzfläche.

Zu den durchgeführten Maßnahmen zählen die Erneuerung des Dachstuhls und der Dacheindeckung, der Austausch der Fenster sowie die Sanierung der Fassade.

Zwei PKW-Stellplätze auf dem Grundstück runden das Angebot ab.