Eine Spitzenlage von Berlin – Nahe Kurfürstendamm & Ludwigkirchplatz!
Die Immobilie befindet sich zwischen dem renommierten Kurfürstendamm und dem beliebten Ludwigkirchplatz - einem der charmantesten Kieze Berlins.
Zahlreiche und sehr individuelle Einzelhandelsgeschäfte, eine vielfältige Auswahl an Restaurants und Cafés sowie gemütliche, malerische Plätze zum Verweilen - wie der Ludwigkirchplatz oder der Olivaer Platz - prägen den beliebten Kiez-Flair.
Der Kurfürstendamm und als dessen Verlängerung der Tautentzien, das KaDeWe, das Europa-Center und das Bikini-Haus am Zoo bieten zudem Mode der bekannten Designer-Labels sowie Kultur-, Freizeit- und Genussmöglichkeiten.
Eine bessere Lage, in einem attraktiven Kiez und Nahe am Puls der Stadt, ist kaum zu finden.
Die öffentlichen Verkehrsmittel sind fußläufig in kurzer Distanz erreichbar und gewährleisten eine schnelle Anbindung, der U-Bahnhof Hohenzollernplatz der Linie U3 sowie der Bus der Linie 249 befinden sich in unmittelbarer Nähe, zudem sind die U-Bahn-Station der Linie U1 sowie die Busse der Linien M19, M29, X10, N10, 109 und 110 in ca. 12 Minuten fußläufig erreichbar. Der S-/U-Bahnhof Zoologischer Garten ermöglicht weiterhin eine gute Verknüpfung in die umliegenden Berliner Stadtzentren.
Mit dem PKW sind ebenso gut alle Ziele innerhalb und außerhalb Berlins gut erreichbar.
Das Mehrfamilienhaus wurde um die Jahrhundertwende errichtet und ist in ein Vorderhaus, einen Seitenflügel und ein Hinterhaus aufgeteilt. Die Wohnung befindet sich ruhig gelegen im 3. Obergeschoss des Seitenflügels und ist über das Treppenhaus zu erreichen.
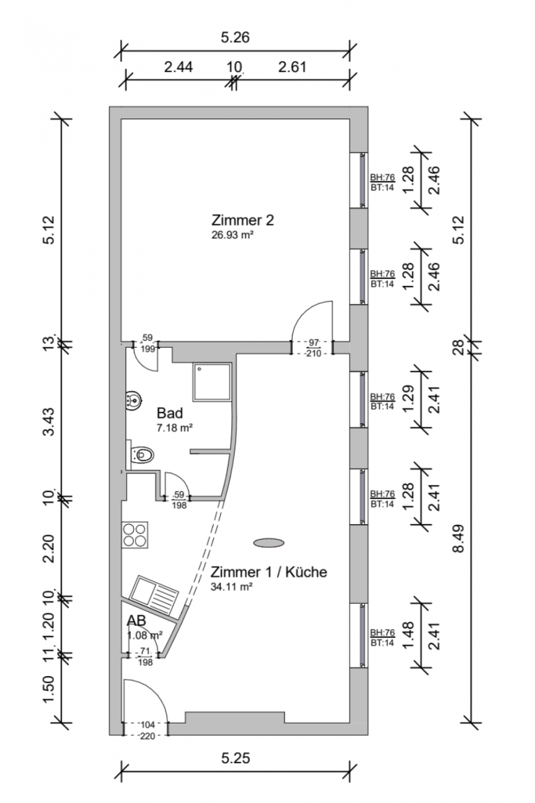
Die stilvoll ausgestattete Wohnung überzeugt durch ihre clevere Raumaufteilung und verfügt über eine Wohnfläche von ca. 69,30 m². Diese verteilt sich auf einen Wohnbereich mit offener Küche, ein Schlafzimmer sowie ein Badezimmer mit bodentiefer Dusche und Waschmaschinenanschluss. Die Einbauküche ist harmonisch in den Wohnbereich integriert, so dass ein großzügiges und offenes Raumgefühl entsteht.
Der Wohn- und Essbereich sowie die Küche sind mit einem Parkettboden ausgestattet, dieser wurde jedoch in Betonoptik hellgrau lackiert, während im Schlafzimmer klassische Holzdielen verlegt sind. Die Wände sind gespachtelt, und die Holz- und Kunststofffenster sind zweifach verglast. Die Deckenhöhe beträgt ca. 3,80 m und vermittelt ein großzügiges Raumgefühl.
Die Wohnung kann bezugsfrei übergeben, und das Mobiliar kann nach Absprache übernommen werden.
Ein Kellerabteil sowie Fahrradabstellmöglichkeiten im Innenhof runden das Angebot ab.
Wir freuen uns auf Ihre Kontaktaufnahme!