Referenznummer:
VK-22275_WE29
Bezug:
leer
Lage:
Berlin-Neukölln
Wohnfläche:
ca. 124.33m²
Zimmeranzahl:
4
Energieausweis:
Liegt vor
Energieausweistyp:
Verbrauchsausweis
Energieverbrauch:
123.7 kWh/(m²*a)
Energieeffizienzklasse:
D
Heizungsart:
Zentralheizung
Wesentlicher Energieträger:
Erdgas schwer
Baujahr:
1900
Provision:
3,57 % des Kaufpreises inkl 19 % MwSt., zahlbar vom Käufer
Kaufpreis:
749.000 €

BEGEHRTES DACHGESCHOSS IM KÖRNERKIEZ - HOHE DECKEN & 2 TERRASSEN - GROSSER & GRÜNER INNENHOF Bearbeiten

Lagebeschreibung:


Neukölln- kommt immer anders und besser als man denkt!

Neukölln ist der namensgebende Ortsteil des nördlichsten und am dichtesten bebauten Teils des Berliner Bezirks Neukölln, der weithin aus Gründerzeitvierteln besteht.

Die Immobilie ist ruhig in einer Seitenstraße gelegen und doch mittendrin.

Die urbane Lage und die charmante Gestaltung der Bebauung bieten eine Mischung aus grünem Umfeld und pulsierender Urbanität. So erfreuen sich nicht nur die Anwohner an dem besonderen Kiez-Flair, viele Restaurants und Cafés haben sich hier ebenfalls niedergelassen und tragen zu dem Zauber des Viertels bei. Der Kranoldplatz mit seinem Wochenmarkt und der neobarocke Körnerpark prägen die direkte Umgebung.

Die Anbindung an den öffentlichen Personennahverkehr verläuft problemlos und flexibel. Vor allem die U-Bahn-Linien U7+ U8 sorgen für eine schnelle Verbindung in die anderen Bezirke der City.

Objektbeschreibung:


Das klassische, viergeschossige Wohngebäude besteht insgesamt aus 43 Einheiten.

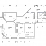
Die Wohnung ist im Dachgeschoss gelegen und über das Treppenhaus zu erreichen.

Auf einer Wohnfläche von ca. 124,33 m² verteilen sich ein großzügiges Wohn-/Esszimmer mit einem offenen Küchenbereich, drei Schlafzimmer, ein Badezimmer und ein Gäste-WC. Das Badezimmer verfügt über eine Badewanne sowie über eine separate Dusche, ist hell gefliest und hat zudem ein großes Fenster für die optimale Belüftung und Belichtung.

Von der Küche, welche mit einer hellen und modernen Einbauküche mit Theke und Ceran-Kochfeld ausgestattet ist, ist die nach Osten ausgerichtete Terrasse zugänglich.

Die West-Terrasse ist vom Schlafzimmer und auch vom Wohnzimmer begehbar.

Hohe Decken von teilweise bis zu 4,40 m vermitteln einen loftartigen Charakter, und die zweifach verglasten Kunststofffenster lassen viel Licht in die Wohnung.

Ein gärtnerisch gestalteter Innenhof mit gepflasterten Wegen, Bänken und Fahrradstellplätzen bildet einen grünen und erholsamen Ruhepol.

Die Wohnung kann nach Absprache bezugsfrei übergeben werden.