Referenznummer:
VK-22233_WE17
Bezug:
leer
Lage:
Berlin-Friedenau
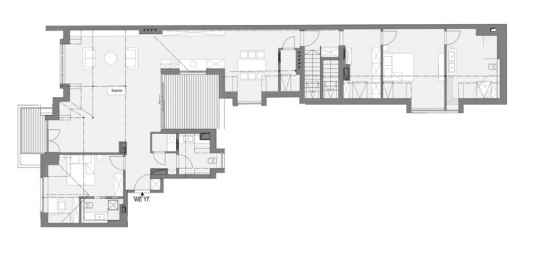
Wohnfläche:
ca. 163m²
Zimmeranzahl:
5
Energieausweis:
liegt zur Besichtigung vor
Baujahr:
1900
Provision:
Gemäß der gesetzlichen Regelung zur Teilung der Maklercourtage beträgt die Provision 3,57% des Kaufpreises inklusive 19% MwSt. jeweils in gleicher Höhe für die Verkäuferseite sowie für die Käuferseite.
Kaufpreis:
1.490.000 €

PALAIS FRIEDENAU - DER NEUE WOHNKLASSIKER - MIT LIEBE ZUM DETAIL

Lagebeschreibung:


DIE LAGE

Friedenau hat Charakter. In den goldenen 20-er Jahren galt der Ortsteil des Bezirks Schöneberg als kreatives Zentrum der Spreemetropole. Erich Kästner, Kurt Tucholsky und die Comedian Harmonists waren hier zu Hause. Auch glänzt der Kiez mit Charme – Gründerzeitbauten mit liebevoll gepflegte Vorgärten und kleine Geschäfte prägen das Bild. Gleichzeitig bietet der ruhige Kiez maximale Konnektivität: Ringbahn und Bundesallee sorgen dafür. Von hier aus liegt einem Berlin buchstäblich zu Füßen.
Kleine Läden, Galerien, Restaurants, Bioläden, Supermärkte, Boutiquen, Schulen mit exzellentem Ruf und Kitas, die Nachbarschaft lässt kaum Wünsche offen. Dabei ticken die Uhren hier ein kleines bisschen langsamer. In Friedenau bleibt man gelassen. Das Berliner Zentrum, die City West und das ganze Großstadtleben erreicht man schnell und einfach – ganz egal ob per PKW oder Bahn. Die S/U- Bahnhöfe Innsbrucker Platz und Bundesplatz mit der Ringbahn und den Linien U4 und U9 sind in weniger als 10 Minuten fußläufig erreichbar. Zur Stadtautobahn A100 sind es mit dem PKW rund 4 Minuten. Bahnhof Südkreuz (ICE) ist in 7 Fahrminuten zu erreichen.

Objektbeschreibung:


DAS KONZEPT

Das Konzept des Palais Friedenau ist so einfach wie überzeugend: Moderner Wohnraum für allerhöchste Ansprüche in einem klassischen Altbau. Umgesetzt nach allen Regeln der Handwerkskunst mit liebevoll ausgewählten Materialien und einer hochmodernen, zeitgemäßen Gebäudetechnik.
Zum Konzept gehört aber auch die exzellente Lage: innerstädtisch mit herausragender Anbindung an alle zentralen Punkte der Hauptstadt und zugleich ruhig in einem gefragten, klassischen Altbaukiez mit geradezu kleinstädtischem Charme. Die Bewohner finden hier Ruhe und sind doch minutenschnell im kosmopolitischen Herzen der Spreemetropole. In anderen Worten: Das Palais Friedenau, ein außergewöhnliches Haus für außergewöhnliche Menschen.

DER NEUE WOHNKLASSIKER

Bei der Sanierung des Palais Friedenau wurden keine Kosten und Mühen gescheut. Zum liebevoll gestalteten Innenhof mit viel Grün und attraktiven Spielflächen hin entstanden neue Balkone. Wände, Decken und Böden wurden grundlegend überarbeitet. Fenster, Türen, Treppenhäuser, Fahrstuhlanlage (im Vorderhaus), Installation, Haustechnik – wurden in erstklassiger Qualität neu gestaltet.
Edle Parkettböden mit Mineralfasertrittschalldämmung und Isolierglasfenster in Holzrahmen mit Altbaucharakter gehören wie selbstverständlich zur Grundausstattung. Im Dachgeschoss
befinden sich luxuriöse Penthousewohnungen.
Das Ziel hatten Bauherr und Architekten dabei immer fest im Blick: Das Palais Friedenau steht für modernes Wohnen und Leben in einem klassischen Berliner Altbau und in bester Lage.

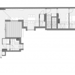
DIE GRUNDRISSE

Das Palais Friedenau bietet Wohnungen und Penthäuser zwischen 50m2 und 163m2 Größe. Die Grundrisse finden Sie auf den folgenden Seiten. Sprechen Sie uns gerne an – vom überlegt ausgestatteten Pärchen-Apartment bis zum luxuriösen Penthouse, ist für jeden etwas dabei.

DER EPILOG

Das Palais Friedenau ist ein klassischer Berliner Altbau aus dem Jahr 1900. An das repräsentative Vorderhaus schließen zwei Seitenflügel an, die einen grünen Innenhof umschließen. Das Haus fügt sich nahtlos in das denkmalgeschützte Ensemble Hähnelstraße ein. Bei der aufwendigen Sanierung wurden keine Mühen gescheut. Der neue Innenausbau und die Haustechnik entsprechen den höchsten Ansprüchen. Die Materialien sind durchweg hochwertig und modern. Die handwerkliche Qualität des Palais Friedenau findet man heute nur noch in den seltensten Fällen. So entstand ein Haus, das zugleich repräsentativ und zurückhaltend wirkt und keine Wünsche offen lässt – ein moderner Klassiker. Dabei folgten Bauherr und Architekt einer klaren Vision: Das Palais Friedenau steht für modernes Leben in einem ruhigen, historischen Altbau. Und gleichzeitig mitten in Berlin.

DIE KÜCHEN

Das Herzstück eines jeden Hauses ist die Küche. Die Küchenräume bieten viel Platz für Freude und Individualität. Alle Anschlüsse, einschließlich der Stromanschlüsse für die Kücheninseln in den größeren Wohnungen, sind vorhanden, damit der Käufer seinen eigenen glücklichen Raum gestalten kann.

DIE BÄDER

Die Bäder beeindrucken mit einer erstklassigen Grundausstattung. In den Bädern sind großflächige Fliesen sowie Ausstattung und Armaturen der renommierten Hersteller Duravit, Hoesch und Hans Grohe verbaut. Einzelne Holzdetails schaffen eine Verbindung zwischen den klaren Linien der Bäder und den feinen traditionellen Details der anderen Räume.

DIE SCHLAFZIMMER

Ein erholsamer Schlaf ist unverzichtbar – für Ihre Gesundheit, für Ihren Erfolg und natürlich auch für Ihr Wohlbefinden. Außerdem haben Sie sich eine gute Nacht auch einfach verdient. Die geräumigen Schlafzimmer im Palais Friedenau sind wie dafür gemacht.

Dank der Fußbodenheizung genießen Sie die ersten Schritte des Tages in aller Gemütlichkeit. Die neue Isolierung zwischen den Wohnungen ist so konzipiert, dass sie Frieden und Ruhe bietet. Dies ist besonders in den Abendstunden von Bedeutung.

LIEBE ZUM DETAIL

Das Detail ist etwas, das den Unterschied zwischen dem Erstaunlichen und dem Durchschnitt ausmacht. Im Palais Friedenau wurde jeder Zentimeter durchdacht, um die perfekte Kombination aus Eleganz und bescheidenem Stil zu schaffen. Fensterrahmen aus hochwertigem Holz, Eingangstüren mit 3-fach Verriegelung und Innentüren mit 2.40m Höhe. Fußboden mit Fußbodenheizung und
Fischgrätparkett. Badausstattung von Duravit und Grohe, mit italienischen Feinsteinfliesen. Die detaillierten technischen Elemente stehen im Einklang mit der feinen Ästhetik.


Die Möbel sind nicht Bestandteil des Angebots.