Referenznummer:
VK-25078_WE21
Bezug:
leer
Lage:
Berlin-Steglitz
Wohnfläche:
ca. 112m²
Zimmeranzahl:
3
Energieausweis:
Liegt vor
Energieausweistyp:
Verbrauchsausweis
Energieverbrauch:
114.4 kWh/(m²*a)
Energieeffizienzklasse:
D
Heizungsart:
Fernwärme
Wesentlicher Energieträger:
Fernwärme
Baujahr:
1900
Provision:
3,57% des Kaufpreises inkl. 19% MwSt., zahlbar vom Käufer.
Kaufpreis:
449.900 €

2 TERRASSEN, BODENTIEFE FENSTER & KAMIN - GROSSZÜGIGES DACHGESCHOSS -ZUM SELBSTGESTALTEN

Lagebeschreibung:


Die Immobilie befindet sich in einer ruhigen Seitenstraße im beliebten Berliner Stadtteil Steglitz, einer der gefragtesten Wohnlagen Berlins nahe des Stadtparks Steglitz. Die Lage besticht durch eine grüne Umgebung sowie die Nähe zum Zentrum, um alle Vorteile des Großstadtlebens genießen zu können.

Hervorragende Einkaufsmöglichkeiten und eine gastronomische Vielfalt bietet die Schlossstraße, die als kleine Schwester vom Kurfürstendamm bekannt und beliebt ist. Dort befinden sich verschiedene Geschäfte und Einkaufszentren, die zum Flanieren einladen. In der näheren Umgebung steht eine Auswahl von gemütlichen Cafés und beliebten Restaurants zur Verfügung.

Der großflächige Stadtpark Steglitz lädt zu gemütlichen Spaziergängen ein. Der rund 17 ha. große Park wurde zwischen 1906 und 1914 angelegt, später entstand ein Rosengarten mit einem Seerosenbecken. Neben einem Musikpavillon gibt es mehrere Liegewiesen und Spielplätze, eine Minigolfanlage, einen Naturlehrpfad und einen Rodelhang. Außerdem verfügt der Park über vier künstlich angelegte Teiche.

Eine gute Anbindung an den öffentlichen Personenverkehr ist durch verschiedene Buslinien gegeben. Mit dem PKW sind alle Ziele in und rund um Berlin ebenfalls sehr gut erreichbar.

Objektbeschreibung:


Das Mehrfamilienhaus wurde um die Jahrhundertwende erbaut. Die Wohnung befindet sich im Dachgeschoss, das in den 1990er-Jahren aufgesetzt wurde, und ist über das Treppenhaus erreichbar.

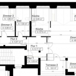
Die Wohn-/Nutzfläche beträgt ca. 122 m² und verteilt sich auf einen großzügigen Eingangsbereich; zwei Schlafzimmer, wobei ein Schlafzimmer Zugang zu einer Terrasse bietet; ein tagesbelichtetes Badezimmer mit Badewanne; einen offen gehaltenen Küchenbereich sowie einen großzügigen Wohnbereich mit Zugang zu einer weiteren Terrasse. Der Wohnbereich verfügt über einen Kamin.

Die Holzfenster sind zweifach verglast, große Fensterfronten, teilweise bodentief, lassen viel Licht in die Räume. Die Wände sind tapeziert, und die Wohnräume sind mit Parkettboden ausgestattet.

Die Warmwasserversorgung erfolgt durch einen elektrischen Durchlauferhitzer.

Die Wohnung ist bezugsfrei und kann von einem neuen Eigentümer nach eigenen Vorstellungen renoviert oder modernisiert werden.

Der Grundriss kann bei Bedarf dahingehend verändert werden, dass das Wohnzimmer geteilt wird, so dass ein weiterer Raum entsteht.

Ein hübscher Gemeinschaftsgarten kann von den Bewohnern genutzt werden und lädt zum Entspannen oder geselligen Beisammensein ein.

Ein Kellerabteil rundet das Angebot ab.